Modern Townhouse Living
This 2020 built, meticulously designed and immaculately presented Torrens Title home offers its new owner a brilliant lifestyle, perfectly situated adjacent to East Parkway Reserve and Playground.
Greeted by a stylish facade with black framed windows and a manicured, low maintenance front garden. Once you step inside you will instantly appreciate the quality fixtures, fittings and modern elegance throughout.
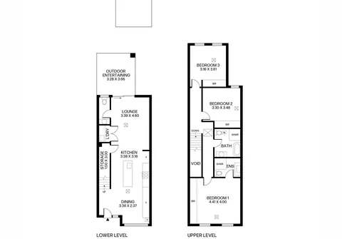
The floorplan has been thoughtfully designed with the ground floor boasting a flawless natural flow from the divine open plan living area, through to the alfresco, where you can entertain friends and family with ease. The upper level hosts three spacious bedrooms and two immaculate bathrooms.
Upper level comprising:
- Large master bedroom with built-in robe and modern ensuite with floor to ceiling tiles
- Good-sized bedrooms 2 and 3, both complete with built-in robes
- Stylish main bathroom with free standing bathtub and separate shower, complete with floor to ceiling tiles and a sky light
- Ducted air conditioning
Lower level comprising:
- Light-filled open plan kitchen, living and dining area with a glass sliding door flowing to the courtyard
- Stunning high-quality kitchen complete with ample storage, stainless steel appliances including gas cooktop and generous island bench with breakfast bar
- Dining area complete with built-in shelving/seat and wine storage
- Valuable powder room providing a third toilet
- European laundry
- Ducted air conditioning
- Under-stair storage
- Alfresco, perfect for outdoor entertaining
- Single carport with roller door and direct internal access
- 6x solar panels
Lightsview has been carefully designed with attention to convenience and open spaces, incorporating pedestrian linkages, local parks and public reserves, public transport and cycling routes. Located close to Northgate Shopping Centre and a variety of excellent public and private schools. All this and only 7km (approximately) to all the cafes and shopping North Adelaide has to offer and the vibrant Adelaide Oval River precinct and less than 9km (approximately) to the CBD.
For further information please contact Jimmy Wu on 0417 874 084, Jackson Pinchbeck on 0455 933 439 or 8269 7711 (office).
All information contained herewith, including but not limited to the general property description, price and the address, is provided to Boffo Real Estate by third parties. We have obtained this information from sources we believe to be reliable; however, we have not verified and do not guarantee its accuracy. The information contained should not be relied upon and you should make your own enquiries and seek advice in respect of this property or any property on this website.
RLA 313174
