Entry-Level Unit in a Sought-After Location!
Ideally positioned within a charming single-story complex, this two-bedroom unit offers the perfect entry point for first-time buyers or an appealing investment opportunity for those seeking strong returns and potential capital growth. With partially completed renovations, you have the exciting opportunity to add your personal touch and finish the space to your unique taste and style.
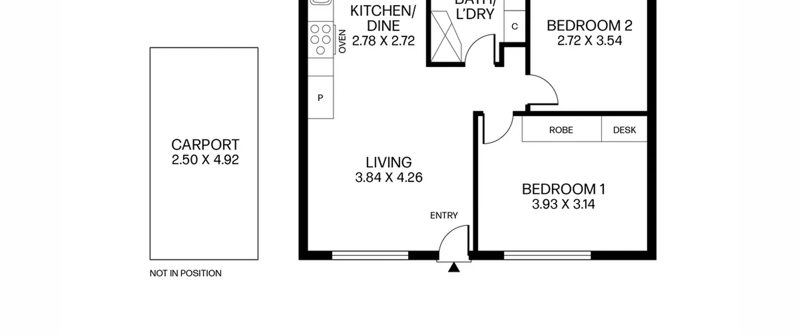
Designed with convenience in mind, the well-thought-out floor plan features two bedrooms, a spacious lounge and dining area upon entry, and a practical kitchen. Located on Churchill Road, this prime address offers superb connectivity to nearby amenities, including shopping centers, schools, parks, and public transportation. With the area's growing popularity and high rental demand, this property is a compelling prospect for buyers focused on solid returns and future growth potential.
Features that make this home special:
- 2 spacious bedrooms, both with new flooring, bedroom 1 with built-in cupboards
- Generous open plan living/dining room
- Kitchen with gas cooktop overlooks the living room
- Bathroom with shower and laundry facilities
- Single carport space
Within easy walking distance to all of the shopping and entertainment options that Prospect Road offers plus eateries. Also conveniently close to North Park Shopping Complex, Sefton Plaza and ample public transport options. Located close to a variety of quality schools such as Blackfriars Primary School, Prospect Primary and Nailsworth Primary and zoned for the Adelaide High School and the new Adelaide Botanic High School. All of this and only 4kms (approximately) to vibrant North Adelaide and 6kms (approximately) to the CBD.
All information contained herewith, including but not limited to the general property description, price and the address, is provided to Boffo Real Estate by third parties. We have obtained this information from sources we believe to be reliable; however, we have not verified and do not guarantee its accuracy. The information contained should not be relied upon and you should make your own enquiries and seek advice in respect of this property or any property on this website.
Looking to purchase this property as an investment? Speak to our Property Management team to see how we can assist.
RLA 313174
