Sit Back, Relax and Enjoy!
This fantastic low maintenance home provides a great opportunity for those seeking a secure and private property requiring nothing to do but simply move in, relax and enjoy life as all the hard work has already been done. This is a home that will truly appeal to those already living in the area and looking to downsize. Equally it represents a great opportunity for first home buyers and astute investors. Property is self-managed with low fees.
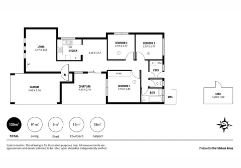
Features that make this home special:
- 3 bedrooms, bedroom 1 with built-in robe
- Separate, light filled living area with air conditioner
- Timber kitchen with dishwasher and ample bench and cupboard space
- Dining area adjacent kitchen
- Main bathroom with separate bath and shower + separate toilet
- Separate laundry
- Freshly painted throughout
- Ducted evaporative air-conditioning to bedrooms
- Secure courtyard, perfect for outdoor entertaining
- Fully fenced, manicured rear garden
- Garden shed
- Single carport
In close proximity to a great variety of early learning centres, public and private schools including Ardtornish Primary School, St Agnes Primary School, Highbury Primary School and Torrens Valley Christian School. Various sporting grounds and parks are all nearby.
You are spoilt for choice with the shopping options both the Hope Valley Shopping Centre and all the shopping and entertainment that Tea Tree Plaza has to offer is only a quick drive away. Easy access to the CBD via the O-Bahn Interchange.
For further information please contact Robert Lonie on 0419 129 009 or Scott McNeela on 0455 800 848 or 8269 7711 (office).
RLA 200591
