Build Your Dream Home!
When location counts you can't go past this rare and exciting opportunity! Perfectly situated amongst other quality homes in the ever popular suburb of Hope Valley, this allotment offers the opportunity to build your long awaited dream home (Subject to Council Consent).
Set on 302sqm (approximately) of land with a 13.04m frontage (approximately) and 23.16m depth (approximately).
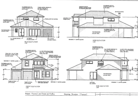
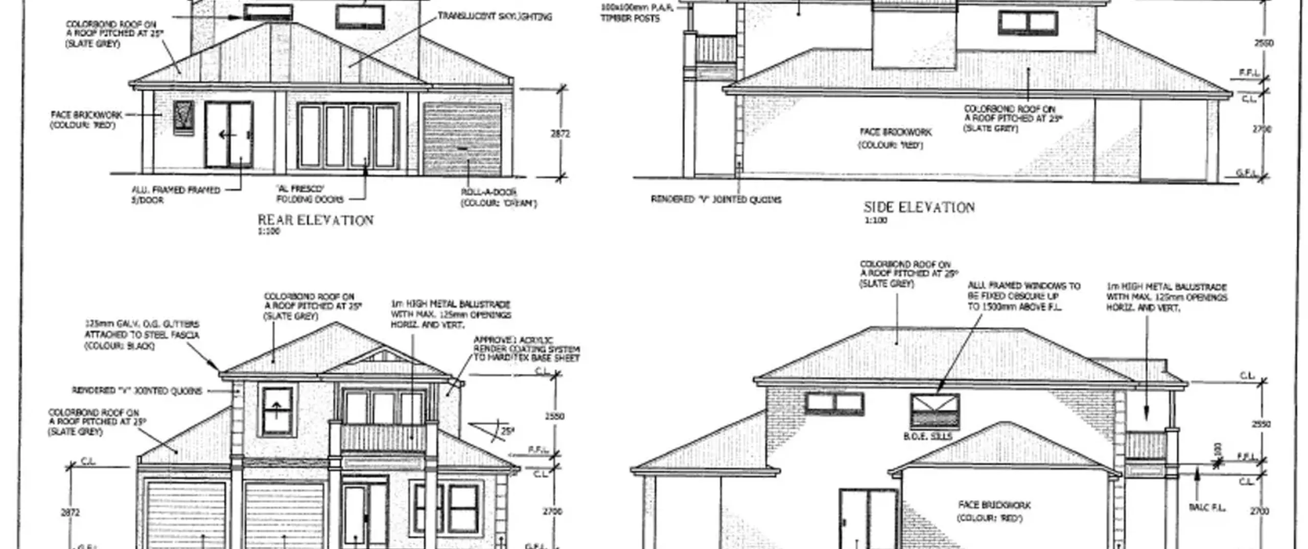
Proposed dwelling elevations and drawings have already been completed! (Build is Subject to Council Consent)
In close proximity to a great variety of early learning centres, public and private schools including Ardtornish Primary School, St Agnes Primary School, Highbury Primary School and Torrens Valley Christian School. Various sporting grounds and parks are all nearby.
You are spoilt for choice with the shopping options both the Hope Valley Shopping Centre and all the shopping and entertainment that Tea Tree Plaza has to offer is only a quick drive away. Easy access to the CBD via the O’Bahn Interchange.
For further information please contact Robert Lonie on 0419 129 009 or 8269 7711 (office).
RLA 200591
