Value Buying in Fantastic Area
Situated on a generous 756sqm block (approximately) this fabulous 3 bedroom home is all about the lifestyle with many great amenities close by. Making this home the perfect base for your family.
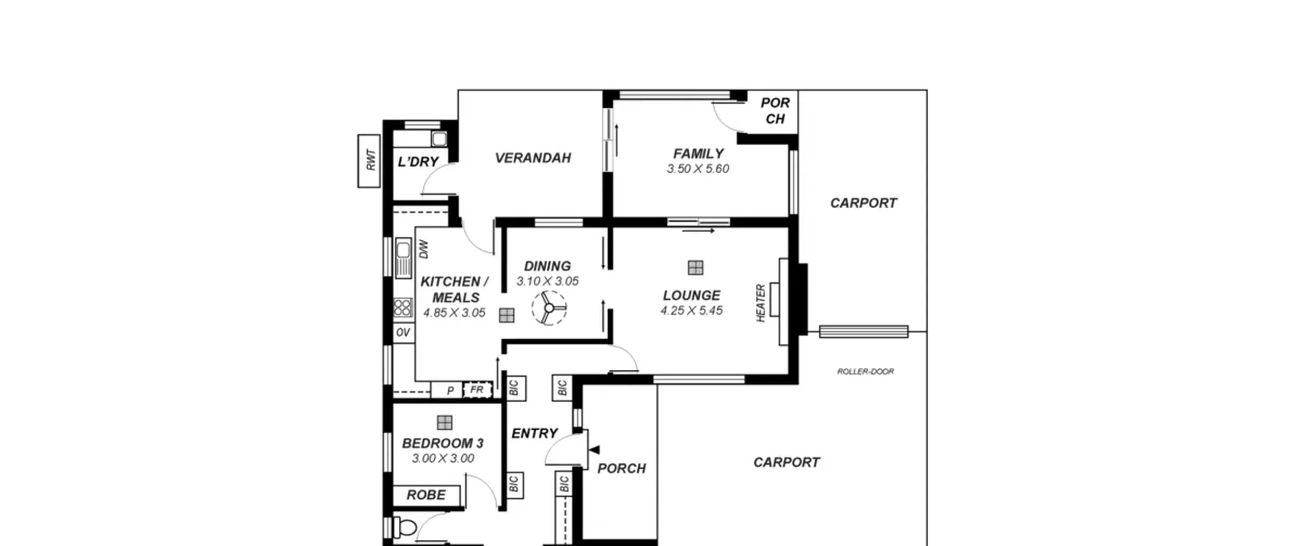
Features that make this home special:
- 3 Good sized bedrooms, all with built-in robes
- Large lounge with heater
- Spacious eat-in kitchen with ample bench and cupboard space
- Dining room adjacent kitchen
- Family area at rear of home, overlooking backyard
- Tidy bathroom with separate bath and shower + separate w/c
- Separate laundry
- Ducted evaporative cooling
- Verandah area for outdoor entertaining
- Sparkling in-ground swimming pool
- Solar power system with 10 panels
- Established front and rear
- Fully fenced rear yard
- Rainwater tank
- Large storage shed at rear of property
- Expansive carport with room for 4 vehicles
Located in the heart of the emerging suburb of Hope Valley. In close proximity to a great variety of early learning centres, public and private schools including St Agnes Primary School and Ardtornish Primary School. Various sporting grounds and parks are all nearby. You are spolit for choice with the shopping options the Hope Valley Shopping Centre, St Agnes Shopping Centre and all the shopping and entertainment that Tea Tree Plaza has to offer is only a quick drive away. Easy access to the CBD via the O’Bahn Interchange.
For further information please contact Robert Lonie on 0419 129 009 or 8269 7711 (office).
RLA 265613
The Vendor's Statement (Form 1), the Auction Contract and the Conditions of Sale will be available for perusal by members of the public -
(A) at the office of the agent for at least 3 consecutive business days immediately preceding the auction; and
(B) at the place at which the auction is to be conducted for at least 30 minutes immediately before the auction commences.
