Value Buying in Fantastic Area
Situated on a quiet street and on a generous 682sqm block (approximately) this fabulous 3 bedroom home is all about the lifestyle with many great amenities close by. Making this home the perfect base for your family.
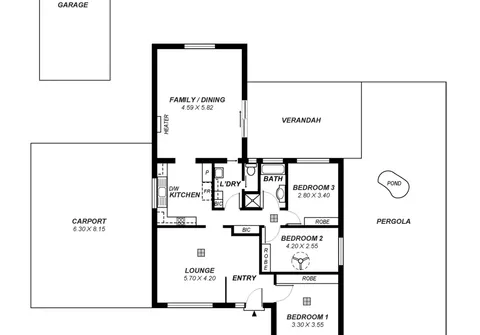
Features that make this home special:
- 3 Good sized bedrooms, all with built-in robes
- Light filled lounge room
- Spacious family/dining area
- Modern kitchen with ample bench and cupboard space, gas upright cooker and dishwasher
- Newly updated bathroom with separate bath and shower
- Separate laundry + w/c
- Neutral décor throughout
- Ducted evaporative cooling
- Generous paved verandah area for outdoor entertaining
- Large pergola with feature pond
- 1.5kw Solar power system with 8 panels
- Established front and rear
- Fully fenced rear yard
- 3000 Litre Rainwater tank
- Expansive carport with room for 4 vehicles + lock up garage at rear
Located in the heart of the emerging suburb of Hope Valley. In close proximity to a great variety of early learning centres, public and private schools including Highbury Primary School and Torrens Valley Christian School. Various sporting grounds and parks are all nearby. You are spolit for choice with the shopping options both the Hope Valley Shopping Centre and all the shopping and entertainment that Tea Tree Plaza has to offer is only a quick drive away. Easy access to the CBD via the O’Bahn Interchange.
For further information please contact Robert Lonie on 0419 129 009 or 8269 7711 (office).
RLA 265613
The Vendor's Statement (Form 1), the Auction Contract and the Conditions of Sale will be available for perusal by members of the public -
(A) at the office of the agent for at least 3 consecutive business days immediately preceding the auction; and
(B) at the place at which the auction is to be conducted for at least 30 minutes immediately before the auction commences.
