Stylish Family Residence Complete with Stunning Outdoor Entertaining Area including a Pool!
This beautifully presented home is situated on an enviable 609sqm (approximate) manicured block and offers an unparalleled lifestyle, seamlessly connecting you to a plethora of delightful amenities, including serene walking paths, lush parks, and inviting playgrounds.
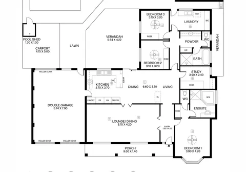
Entertaining is a breeze with the expansive formal lounge and dining area that seamlessly flows to the open plan kitchen, dining, and living area, providing ample room for gatherings of any size. Step outside and discover the ultimate entertainer's haven, complete with a spectacular pitched roof verandah that overlooks the sparkling swimming pool. Offering a refreshing oasis for hot summer days and provides the perfect backdrop for relaxing outdoor living. Tucked away at the back of the property is a retreat room, complete with air conditioning, offering versatility as a guest bedroom or additional living space.
Simply move in, unpack and enjoy easy-care, convenient living in a sought-after location.
Features that make this home special:
- Master bedroom with built-in robe, ceiling fan, bay window and ensuite featuring spa bath and separate toilet
- Additional two bedrooms featuring built-in robes and ceilings fans
- Study with built-in desk
- Bright and airy open-plan living and dining space with a skylight overhead
- Kitchen with breakfast bar, dishwasher and newly installed gas cooktop and oven
- Large separate lounge/dining room
- Laundry with plenty of cupboard space and direct rear access
- External retreat with built-in robe and split system air conditioner
- Verandah with pitched roof, perfect for outdoor entertaining
- Lawn area for the kids and pets to enjoy
- Sparkling in-ground swimming pool with newly installed pool pump
- Pool shed
- Double garage with internal and external access through roller door to accommodate trailer
Additional features:
- High 2.7m ceilings throughout for a spacious feel
- 10.6kw solar system and 3 phase power
- Security alarm system, roller shutters, and security doors for peace of mind
- Newly installed automatic roller doors
Located close to Anstey Hill where you can explore the walking trails and wildlife. Only a short drive to the Hope Valley Reservoir perfect for fitness activities, pets and kids to enjoy. Just minutes away from Hope Valley Shopping Centre, a variety of sought-after schools, parks and public transport options including the city via the O'Bahn. Additionally, in close proximity to all the shopping and entertainment that Westfield Tea Tree Plaza has to offer! Plenty of great local restaurants nearby.
All information contained herewith, including but not limited to the general property description, price and the address, is provided to Boffo Real Estate by third parties. We have obtained this information from sources we believe to be reliable; however, we have not verified and do not guarantee its accuracy. The information contained should not be relied upon and you should make your own enquiries and seek advice in respect of this property or any property on this website.
The Vendor's Statement (Form 1), the Auction Contract and the Conditions of Sale will be available for perusal by members of the public - (A) at our office located at 78-80 North East Road, Walkerville for at least 3 consecutive business days immediately preceding the auction; and (B) at the place at which the auction is to be conducted for at least 30 minutes immediately before the auction commences.
RLA 313174
