Enticing with Endless Opportunities, Large 780sqm Allotment!
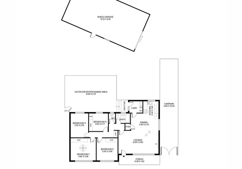
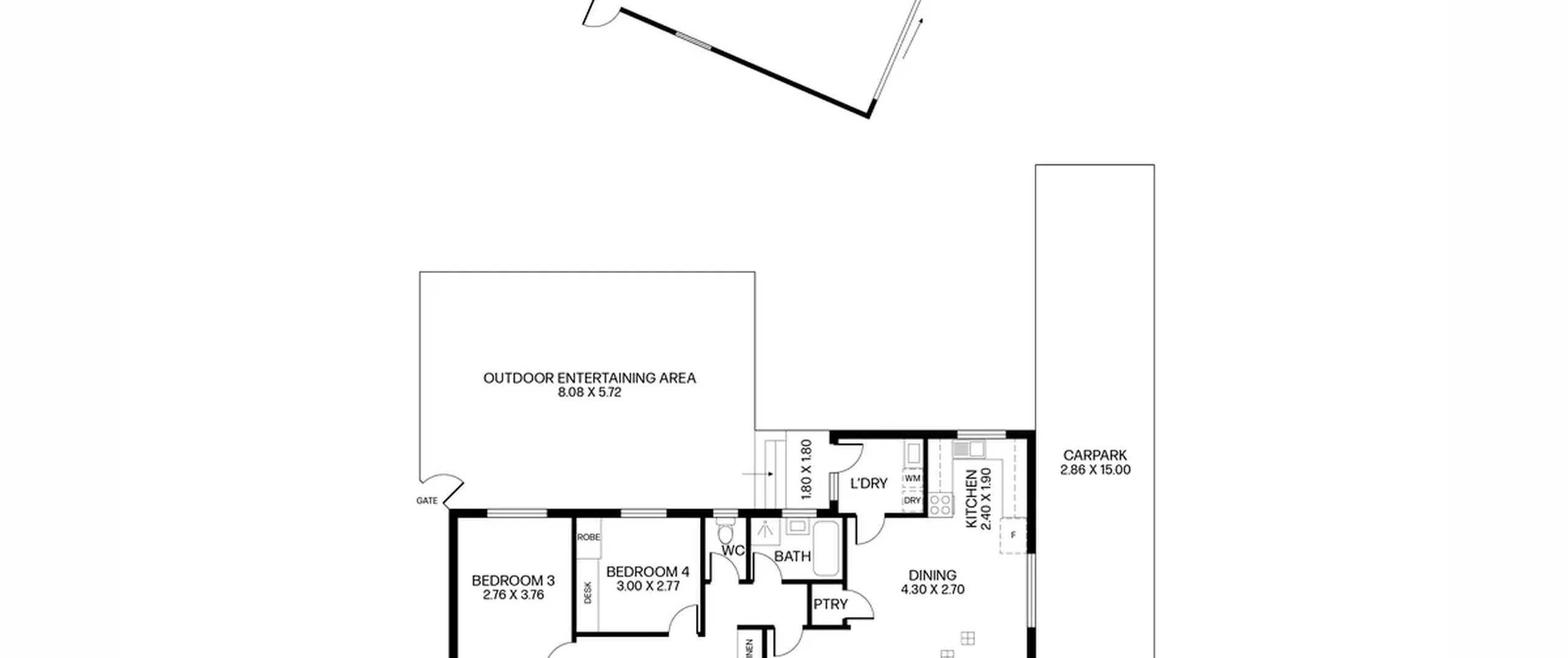
An inviting opportunity for first home buyers, families, or savvy investors. You’ll want to see what this home on an enticing 780sqm (approximate) allotment with 19m frontage has to offer. Four-bedroom home, with a dual access drive through driveway, substantial block size and large shedding at the rear.
Inside you’ll find a versatile floorplan including four well sized bedrooms, a light open plan lounge, dining and kitchen space. An original condition kitchen with ample cupboard and bench space overlooking the rear yard. Completing the internal layout is the central main bathroom with floor to ceiling tiling and separate toilet plus laundry with direct access to the enclosed undercover, outdoor entertaining area.
Outside a large undercover and enclosed entertaining space, substantial and low maintenance rear yard and a large shed/garage, the perfect place to store additional belongings, motor vehicles or have your very own workshop right in your back yard!
Located close by to all conveniences with Canopus Reserve right at your doorstep and with the ever-popular Anstey Hill Recreation Park only moments away.
Features that make this home special:
- Large main bedroom with ceiling fan and built-in robe
- Good sized bedrooms 2, 3 and 4, bedrooms 2 and 4 with built-in robes and bedroom 4 with built-in desk
- Spacious light filled lounge and dining area with split system air conditioner
- Practical kitchen with standalone oven and cooktop, complete with ample storage space
- Neat and tidy bathroom with separate bath and shower with floor to ceiling tiles
- Separate toilet for added convenience
- Separate laundry with external access
- Generous enclosed pitched roof verandah, perfect for year-round outdoor entertaining
- Expansive low-maintenance backyard with substantial 12.22m x 6.18m detached shed/garage
- Large, gated driveway for secure off street parking with drive through access to the backyard and rear shed
- Established front gardens with large open driveway for additional off-street parking
Located close to Anstey Hill where you can explore the walking trails and wildlife. Only a short drive to the Hope Valley Reservoir perfect for fitness activities, pets and kids to enjoy. Just minutes away from Hope Valley Shopping Centre, a variety of sought-after schools, parks and public transport options including the city via the O'Bahn. Additionally, in close proximity to all the shopping and entertainment that Westfield Tea Tree Plaza has to offer! Plenty of great local restaurants nearby.
For further information please contact Robert Lonie on 0419 129 009 or Gavin Apacible on 0455 800 848 or 8269 7711 (office).
All information contained herewith, including but not limited to the general property description, price and the address, is provided to Boffo Real Estate by third parties. We have obtained this information from sources we believe to be reliable; however, we have not verified and do not guarantee its accuracy. The information contained should not be relied upon and you should make your own enquiries and seek advice in respect of this property or any property on this website.
RLA 313174
