Impressive Family Entertainer!
Perfectly positioned on a corner allotment and set on a large 1252sqm (approximately), this beautifully presented home provides ample space for the entire family to live and play.
Designed with generously proportioned rooms, exquisite entertaining areas, sparkling in-ground pool and seamlessly blending indoor and outdoor living, this home evokes a sense of sophistication and style.
There is nothing to do but move in and start enjoying the lifestyle this property offers!
Features that make this home special:
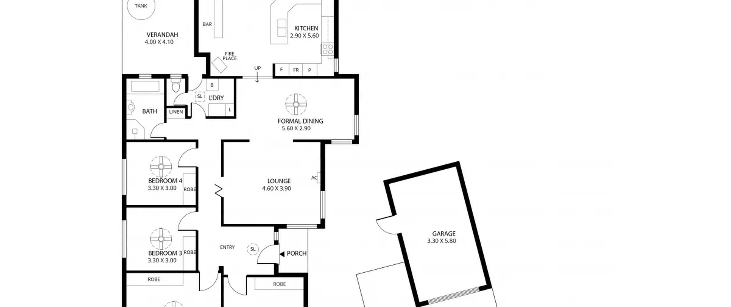
- Luxurious master retreat with built-in robe, ceiling fan, wall heater, plantation shutters and ensuite offering a spa bath
- Large bedroom 2 with built-in robe, ceiling fan, wall heater and separate study with ceiling fan
- Good sized bedrooms 3 and 4 with built-in robes, ceiling fans and wall heaters
- Formal lounge with split system air conditioner
- Formal dining room with ceiling fan
- Beautiful light filled open plan living area with bar, wood fire, split system air conditioner, ceiling fan and glass windows overlooking the entertaining area and pool
- High quality kitchen with stone bench tops, pigeon pair integrated Electrolux fridge and freezer, induction cooktop, Miele appliances including dishwasher, oven and rangehood, 3 in 1 mixer tap, breakfast bar and ample bench and cupboard space
- Main bathroom with separate bath and shower + separate toilet, featuring floor to ceiling tiles
- Separate laundry with access to rear yard
- Impressive raised decked patio with curved roof that overlooks the stunning in-ground swimming pool
- Solar heated salt water swimming pool
- Side pergola and verandah with pool shed and BBQ area
- Secure rear yard with three garden sheds and two rainwater tanks that are connected to irrigation and laundry trough/washing machine
- Double carport
- Single garage with automatic roller door
Additional features:
- Solid blackwood flooring on twin layers of structaflor proving a 65mm thick floor
- Downlights throughout
- Roof access via attic ladder for additional storage
- Luxaflex cellular blinds
- Gas hot water
Located in the emerging suburb of Hope Valley. In close proximity to a great variety of early learning centres, public and private schools including Highbury Primary School and Torrens Valley Christian School. Various sporting grounds and parks are all nearby. You are spolit for choice with the shopping options both the Hope Valley Shopping Centre and all the shopping and entertainment that Tea Tree Plaza has to offer is only a quick drive away. Easy access to the CBD via the O'Bahn Interchange.
Inspection is a must!
For further information please contact Robert Lonie on 0419 129 009 or Scott McNeela on 0455 800 848 or 8269 7711 (office).
RLA 200591
