Endless Opportunities!
This home set on a large allotment of 702.8sqm (approximately) with a 23.06m (approximate) frontage offers a prime opportunity for the new owner to secure such a fantastic property with endless opportunities! Renovate and add value, restore and rent out, redevelop and renew the choice is yours (all subject to council consent)!
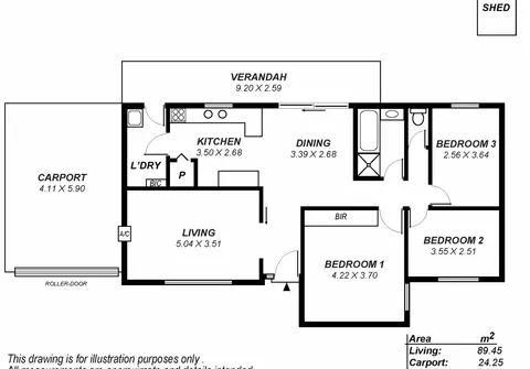
Features that make this home special:
- Master bedroom with built-in robe
- Spacious bedrooms 2 and 3
- Light filled living room with reverse cycle wall air conditioner
- Updated kitchen with walk-in pantry and ample bench and cupboard space
- Casual dining room adjacent kitchen
- Neat and tidy bathroom with separate bath and shower + separate toilet
- Separate laundry with built-in cupboard
- Expansive rear yard
- Garden shed
- Single carport with roller door
Located in the heart of the emerging suburb of Hope Valley, down the road from a beautiful reserve. In close proximity to Tea Tree Plaza Shopping Centre, minutes to the Modbury hospital and to the O’Bahn Interchange. Great public and private schools are also close by.
Opportunities to secure properties of this nature are becoming few and far between.
For further information please contact Robert Lonie on 0419 129 009 or 8269 7711 (office).
RLA 200591
