Prepare to be Impressed!
This fabulous 4 bedroom family home has been immaculately presented and finished, leaving nothing more to do to other than move in and enjoy. Located on a 653sqm (approximate) low maintenance allotment with immense street appeal, you will be the envy of all your family and friends.
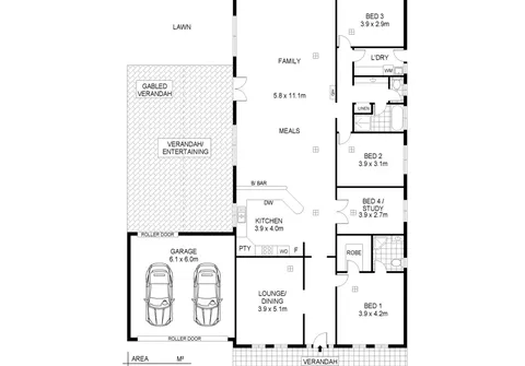
Features that make this home special:
- Master bedroom with walk-in robe and ensuite
- Spacious bedrooms 2 and 3
- Study or additional 4th bedroom
- Light filled formal lounge and dining area
- Large open plan family and meals area with gas heater
- Stunning kitchen with gas cooktop, dishwasher, walk-in pantry, wine rack and ample bench and cupboard space
- Sparkling main bathroom with separate bath and shower + separate toilet
- Separate laundry with built-in bench
- Ducted evaporative cooling throughout
- Expansive outdoor entertaining area
- Low maintenance front and rear yard
- Garden shed
- Double car garage with roller door and rear access roller door
Located in the heart of the emerging suburb of Hope Valley and in close proximity to Tea Tree Plaza Shopping Centre, minutes to the Modbury hospital and the O’Bahn Interchange. Great public and private schools are also close by.
For further information please contact Robert Lonie on 0419 129 009 or 8269 7711 (office).
RLA 200591
