Fantastic Family Home
This fantastic 4 bedroom home situated on a generous 905sqm block (approximately) is all about the ample space for your family to both live and play. All this plus many more features making this home the perfect base for your family.
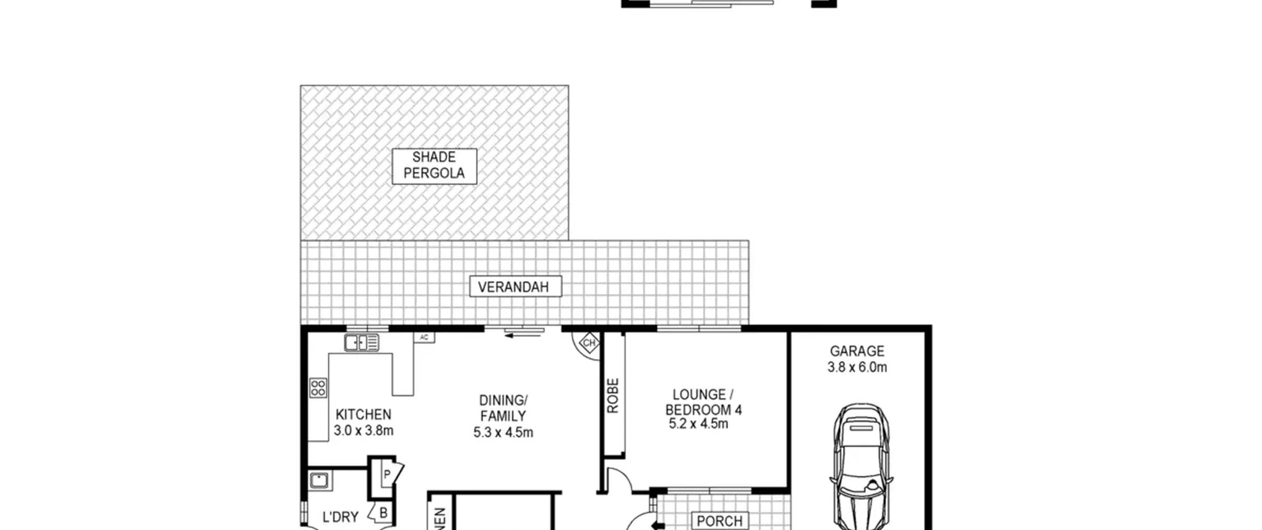
Features that make this home special:
- Master bedroom
- Good sized bedrooms 2 and 3
- Large lounge or additional 4th bedroom
- Light filled dining and family room
- Kitchen with ample bench and cupboard space
- Tidy bathroom with separate bath and shower + separate w/c
- Separate laundry
- Expansive paved verandah/pergola area ideal for outdoor entertaining
- Established front and rear gardens
- Fully fenced rear yard
- Single carport with roller door + double garage at rear
Located in the heart of the emerging suburb of Hope Valley. In close proximity to a great variety of early learning centres, public and private schools including Highbury Primary School and Torrens Valley Christian School. All the shopping and entertainment that Tea Tree Plaza has to offer is only a quick drive away. Easy access to the CBD via the O’Bahn Interchange.
For further information please contact Robert Lonie on 0419 129 009 or 8269 7711 (office).
RLA 200591
*Please Note: The Vendor nor the Sales Representative provides warranty to the condition of the fixtures and fittings. You should assess the suitability of any purchase of the land in light of your own needs and circumstances by seeking independent financial and legal advice.
