Amazing Potential
This home set on a corner allotment of 830sqm (approximately) offers a prime opportunity for the new owner to secure such a fantastic property with endless opportunities! Renovate and add value, restore and rent out, redevelop and renew the choice is yours (all subject to council consent)!
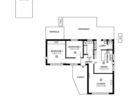
Features that make this home special:
- Master bedroom with built-in robe and wall unit air conditioner
- Spacious bedroom 2
- Entry with ceiling fan
- Light filled lounge with split system air conditioner
- Neat and tidy kitchen with ample bench and cupboard space
- Dining area adjacent kitchen with wall unit air conditioner
- Functional bathroom with separate bath and shower + separate toilet
- Separate laundry with built-in cupboards
- Paved undercover outdoor entertaining area
- 4 x rainwater tanks
- Off street parking for 2 vehicles
- Single garage
Located in the heart of the emerging suburb of Hope Valley, down the road from a beautiful reserve. In close proximity to Tea Tree Plaza Shopping Centre, minutes to the Modbury hospital and to the O’Bahn Interchange. Great public and private schools are also close by.
Opportunities to secure properties of this nature are becoming few and far between.
For further information please contact Robert Lonie on 0419 129 009 or 8269 7711 (office).
RLA 265613
The Vendor's Statement (Form 1), the Auction Contract and the Conditions of Sale will be available for perusal by members of the public -
(A) at the office of the agent for at least 3 consecutive business days immediately preceding the auction; and
(B) at the place at which the auction is to be conducted for at least 30 minutes immediately before the auction commences.
