Developers Dream, Tradies Heaven or Family Delight!
Set on a large 810sqm (approximate) allotment with a 21.7m (approximate) frontage in the popular high growth area of Holden Hill, this 4 bedroom home offers an abundance of space for the whole family and additionally providing plenty of room for your caravan, boat or trailer. Renovate and add value, restore and rent out, redevelop and renew the choice is yours (all subject to council consent)!
Features that make this home special:
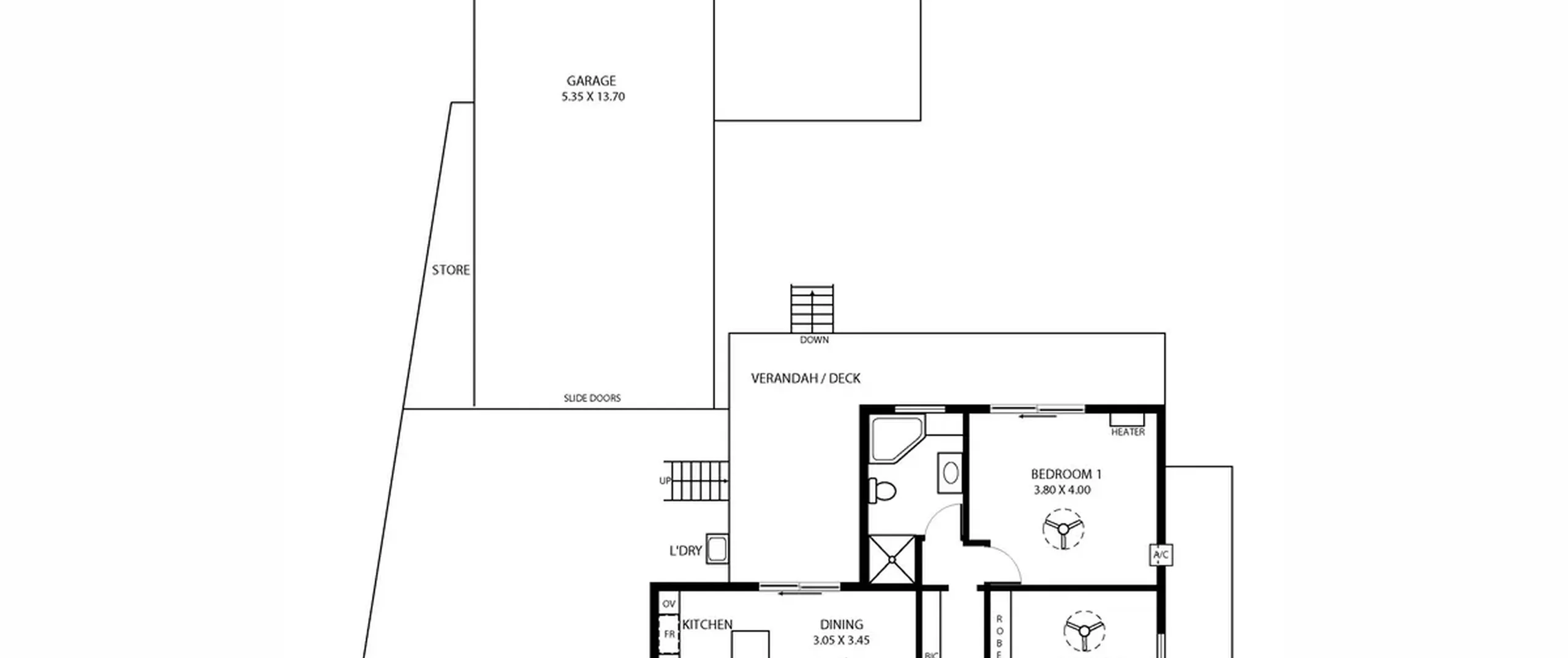
- Large master bedroom with ceiling fan, heater and reverse cycle air conditioner
- Good sized bedrooms 2, 3 and 4, bedroom 2 and 3 with ceiling fans, bedrooms 2 and 4 with built in robes
- Separate lounge with split system reverse cycle air conditioner and built in entertainment unit
- Contemporary kitchen with gas cooktop, breakfast bar, floating floors and skylight
- Dining room adjacent kitchen
- Main bathroom with separate triangular spa-bath and separate oversized shower
- Polished Baltic pine floors to living area and bedrooms
- Near new instant gas hot water system
- Decked verandah, ideal for outdoor entertaining
- Standalone garden pergola and enclosed veggie garden
- Expansive fully fenced, secure, rear yard
- 4 car garage
- 4 car carport incorporating laundry with access to garage and verandah
Superbly located only 12km (approximately) from the Adelaide CBD, within walking distance to local parks and playgrounds and only a short drive to a variety of schools, shopping options including the recently upgraded Gilles Plains shopping centre with Tea Tree Plaza also nearby. Restaurants cafes and public transport options also available.
For further information please contact Robert Lonie on 0419 129 009 or Scott McNeela on 0455 800 848 or 8269 7711 (office).
RLA 200591
