Stunning, Stylish and Superbly Located!
This fabulous family home is situated on a 330sqm (approximate) manicured block and offers an unparalleled lifestyle, seamlessly connecting you to a plethora of delightful amenities, including serene walking paths, lush parks, and inviting playgrounds.
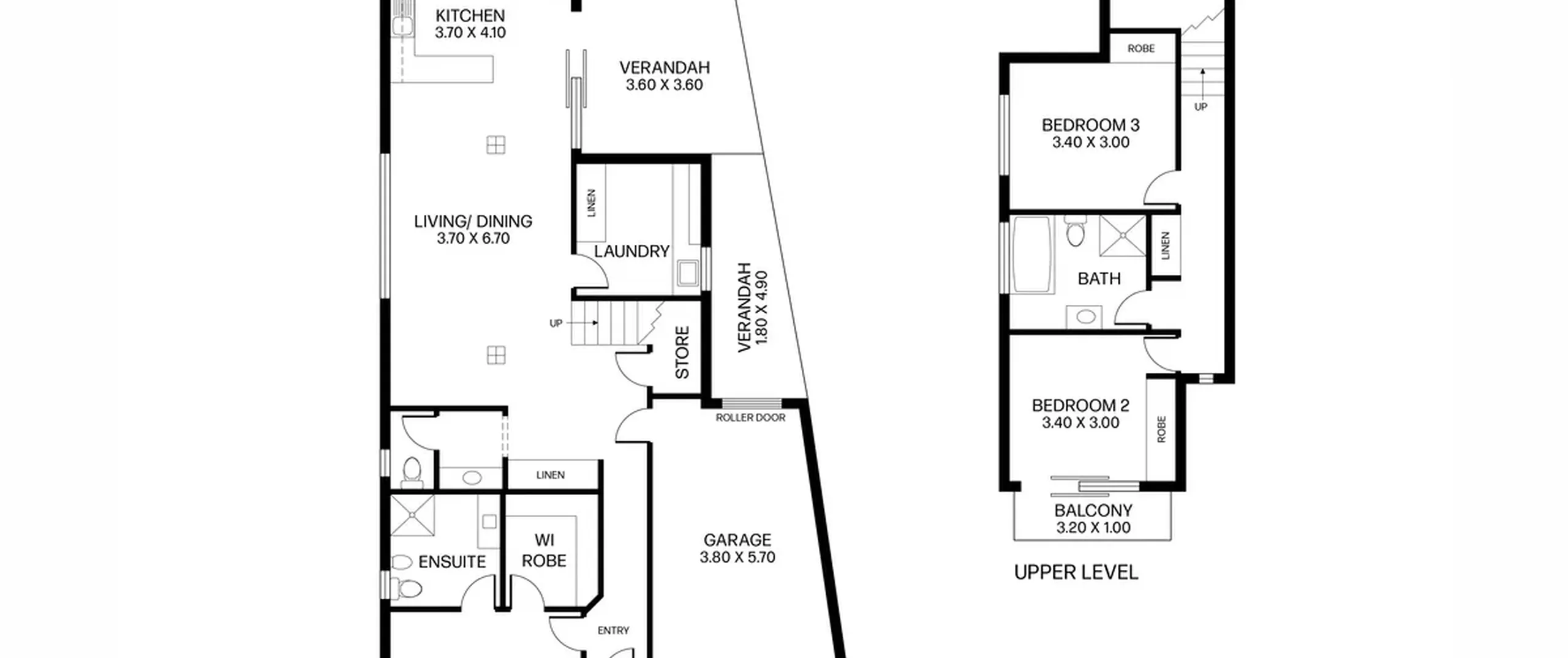
Contemporary style and modern comforts are on show throughout this two-storey abode with quality finishes throughout. You can gather with guests in the open-plan family and meals area with the sleek, stylish and spacious kitchen. Double doors flow through to the outdoor entertaining area with a pitched roof verandah, overlooking the spacious garden your kids and pets are sure to love.
Whether you are seeking a quality first home, a family abode to live in within an in-demand area, or looking for an investment property, then this gorgeous home is the one for you!
Features that make this home special:
Lower Level:
- Master bedroom with walk-in robe and ensuite, featuring floor to ceiling tiling
- Stunning, light filled open plan living, dining and kitchen area
- Modern, white kitchen with gas cooktop and breakfast bar
- Valuable third toilet with basin
- Separate, spacious laundry
- Under stairs storage
- Linen cupboard
- Ducted air conditioning
- Outdoor entertaining area with pitched roof verandah
- Spacious rear yard with grass area
- Garden shed and Rainwater tank
- Single garage with automatic roller door, internal access and external access through rear roller door
Upper Level:
- Two spacious bedrooms with built-in robes
- Bedroom two with balcony
- Bathroom with separate bath and shower, featuring floor to ceiling tiling
- Linen cupboard
Ideally located only minutes away from Greenacres and Lightsview Village Shopping Centre’s, a variety of schools including St Pius X Primary School, Klemzig Primary, Hillcrest Primary, Avenues College and Cedars College. Within easy access to the city via the O-Bahn Klemzig Interchange which is only minutes away. All of this and only 11km (approximately) to the Adelaide CBD and 6.4km (approximately) to all of the shopping and entertainment options that Tea Tree Plaza has to offer.
All information contained herewith, including but not limited to the general property description, price and the address, is provided to Boffo Real Estate by third parties. We have obtained this information from sources we believe to be reliable; however, we have not verified and do not guarantee its accuracy. The information contained should not be relied upon and you should make your own enquiries and seek advice in respect of this property or any property on this website.
RLA 313174
