Unlimited Potential
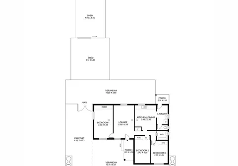
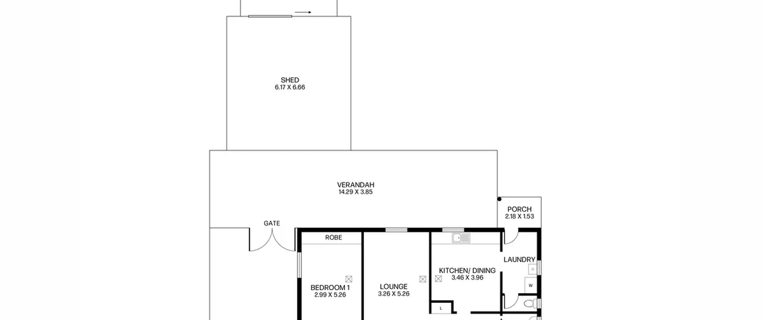
An exceptional opportunity is on offer to secure this original home situated on a generous 836sqm (approximate) block in an extremely popular and in demand near city location. Of exciting interest is the choice to improve the current home or the potential to use the site to redevelop and build your dream home (subject to planning consents).
Perfectly positioned approximately 8km from the Adelaide CBD and currently comprising as an original three-bedroom, one-bathroom home in its original condition.
Astute buyers will surely be impressed with this rare opportunity in the popular suburb of Hillcrest and the potential to add value.
Features that make this home special:
- Three generously sized bedrooms
- Spacious lounge upon entry
- Practical dine-in kitchen with original cabinetry
- Main bathroom with shower over bath
- Laundry with external access
- Expansive verandah entertaining area
- Large fully fenced backyard
- Rainwater tanks
- Double length carport
Ideally located close by to reserves and walking and bike tracks. Only a short drive to Northgate Shopping Centre, Gilles Plains Shopping Centre and Greenacres Shopping Centre. Close to public transport options and quality public and private schools. All of this and only 8km (approximately) to the Adelaide CBD.
Please note: This property is sold on an 'as is' basis.
For further information please contact Jimmy Wu on 0417 874 084, Carlos Carosi on 0428 909 228 or 8269 7711 (office).
All information provided has been obtained from sources we believe to be accurate, however, we cannot provide any guarantee and we accept no liability for any errors or omissions (including but not limited to a property's land size, floor plans and size, building age and condition). Interested parties should make their own inquiries and obtain their own legal advice.
RLA 313174
