Fantastic Opportunity in a Great Location
A rare opportunity is on offer to secure this delightful home set on a 446sqm (approximate) corner allotment of low maintenance grounds. Located in the popular suburb of Hillcrest, this home will appeal to the most astute buyers.
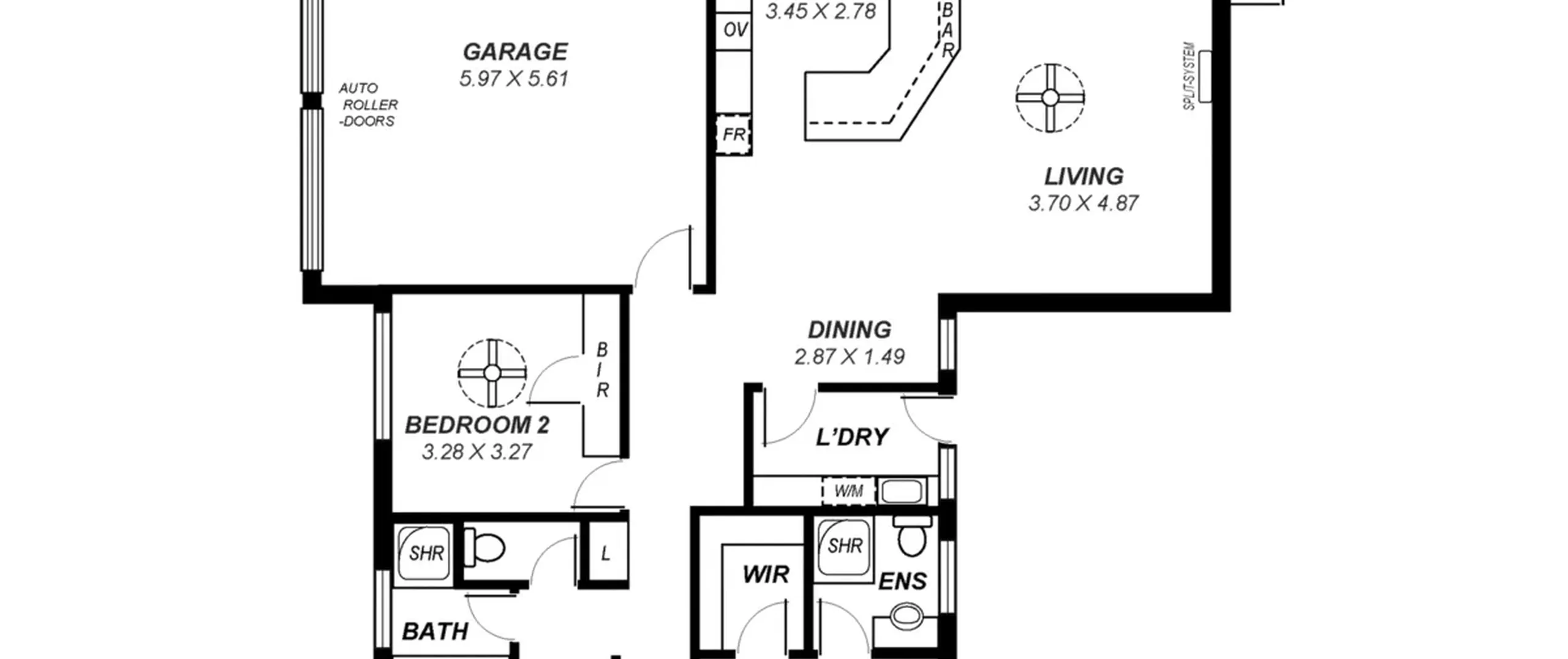
Features that make this home special:
- Generous master bedroom with walk-in robe, ensuite and ceiling fan
- Good sized bedroom 2 with ceiling fan and built-in robe
- Optional bedroom 3 or Studio
- Spacious open plan living and dining area with ceiling fan and split system air conditioner
- Modern kitchen with ample bench and cupboard space, gas cooktop, walk-in pantry and breakfast bar
- Clean and tidy main bathroom with separate bath and shower + toilet
- Separate laundry with ample storage space
- Undercover verandah, perfect for outdoor entertaining
- Double garage under main roof with automatic roller doors and direct internal entry
Positioned close to local parks, schools and public transport options. Located within walking distance to the recently renovated Gilles Plains Shopping Centre, and just a short drive to all the shopping and entertainment that Tea Tree Plaza has to offer. All this and less than 10kms (approximately) to the CBD.
For further information please contact Robert Lonie on 0419 129 009 or 8269 7711 (office).
RLA 200591
