Highbury Home Brimming with Character and Charm
Step inside this charming home, built around 1979 and perfectly positioned on a corner allotment in a peaceful cul-de-sac. Located in the highly sought-after suburb of Highbury, it’s just a short stroll to the picturesque Linear Park and Highbury Aqueduct Trail – ideal for scenic walks, dog outings and spotting local wildlife.
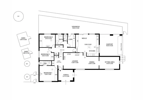
A light-filled and welcoming family lounge provides a warm, comfortable space for everyday living. Flow seamlessly into the generously proportioned kitchen, featuring a skylight, plenty of storage and roller shutters throughout. The home also offers a versatile sitting area, perfect for entertaining guests or enjoying quiet relaxation.
Offering plenty of space to unwind, the backyard features a generous undercover verandah surrounded by established gardens - an ideal spot to read a book or watch the kids play. Completing this fantastic home are three generous bedrooms, two bathrooms and a convenient double carport.
Features that make this home special:
- Master bedroom with built-in robe, reverse cycle air-conditioner and private ensuite with shower and toilet
- Generously sized second and third bedrooms, both with built-in robes
- Central main bathroom featuring a shower, bath and separate toilet for convenience
- Spacious lounge with gas heating, seamlessly flowing into the dining area and a peaceful sitting space
- Neat kitchen with skylight, Bosch dishwasher, electric oven, ceramic cooktop, Puratap and ample storage
- Adjacent meals area for family dining
- Functional laundry with built-in cabinets and direct external access
- Large undercover verandah, ideal for year-round entertaining
- Double carport with electric roller door
Additional features:
- 5,000L rainwater tank
- Two 1,000L rainwater tanks
- Two sheds
Ideally situated just a short drive from the lively shopping and entertainment precinct at Westfield Tea Tree Plaza, this home offers effortless access to the scenic Anstey Hill Recreation Park and Black Hill Conservation Park. Enjoy convenient public transport, including the O-Bahn for a direct city commute and benefit from nearby quality schools such as Highbury Primary, St Ignatius' College and Kildare College.
All information contained herewith, including but not limited to the general property description, price and the address, is provided to Boffo Real Estate by third parties. We have obtained this information from sources we believe to be reliable; however, we have not verified and do not guarantee its accuracy. The information contained herewith should not be relied upon and you should make your own enquiries and seek advice in respect of this property or any property on this website.
The Vendor's Statement (Form 1), the Auction Contract and the Conditions of Sale will be available for perusal by members of the public - (A) at our office located at 78-80 North East Road, Walkerville for at least 3 consecutive business days immediately preceding the auction; and (B) at the place at which the auction is to be conducted for at least 30 minutes immediately before the auction commences.
Looking to purchase this property as an investment? Speak to our Property Management team to see how we can assist.
RLA 313174
