Large Allotment in Prime Location!
When location counts you can't go past this rare and exciting opportunity! Perfectly situated on a quiet cul-de-sac and set on a large 886sqm (approximate) block with a wide 21m (approximate) frontage and 42.8m (approximate) depth.
Offering the new owner a multitude of options including: live in and enjoy, renovate and add your own personal touches, rent out and reap the rewards or redevelop/subdivide. Equally the size and dimensions of the land may well suit those buyers who have been looking for a site to build their dream home (all subject to council consent).
Features that make this home special:
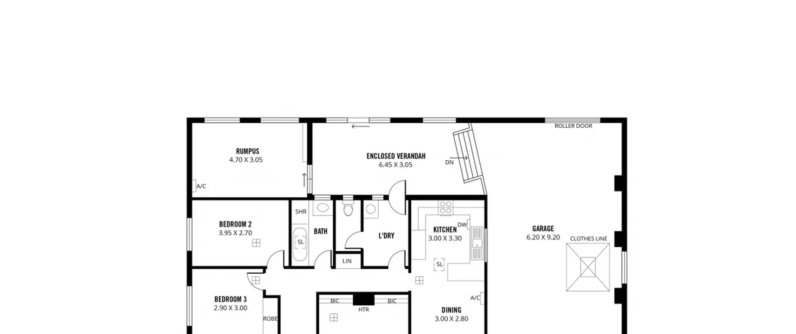
- 3 good sized bedrooms, bedrooms 1 and 3 with built-in robes
- Formal lounge room with built-in cupboards and gas heater
- Timber kitchen with gas cooktop, near new Ariston dishwasher and ample bench and cupboard space
- Dining area adjacent kitchen with wall air conditioner
- Main bathroom with separate bath and shower + separate toilet
- Separate laundry
- Light filled living/rumpus room with wall air conditioner
- Ducted evaporative air conditioning
- Enclosed verandah, perfect for entertaining all year round
- Fully fenced, secure rear yard with separate pergola/shade house and garden shed
- Double length and double width garage to accommodate 4 vehicles with automatic roller door and drive through access to rear yard and additional double garage
- Near new gas hot water system
In close proximity to a great variety of early learning centres, public and private schools including Highbury Primary School and Torrens Valley Christian School. Various sporting grounds and parks are all nearby. You are spoilt for choice with many shopping options close by including the Hope Valley Shopping Centre and Tea Tree Plaza. All of this and easy access to the CBD via the O-Bahn Interchange.
For further information please contact Robert Lonie on 0419 129 009 or 8269 7711 (office).
RLA 200591
The Vendor's Statement (Form 1), the Auction Contract and the Conditions of Sale will be available for perusal by members of the public -
(A) at our office located at 87 North East Road, Collinswood for at least 3 consecutive business days immediately preceding the auction; and
(B) at the place at which the auction is to be conducted for at least 30 minutes immediately before the auction commences.
