Entertain in Style with Grand Proportions and Multiple Living Zones
Designed on a truly grand scale, this impressive residence delivers an exceptional environment for entertaining and hosting, with an expansive lower level that unfolds through a series of elegant, interconnected living spaces. From the moment you arrive, the sense of scale is unmistakable, with multiple zones flowing seamlessly to create a home that is both refined and welcoming.
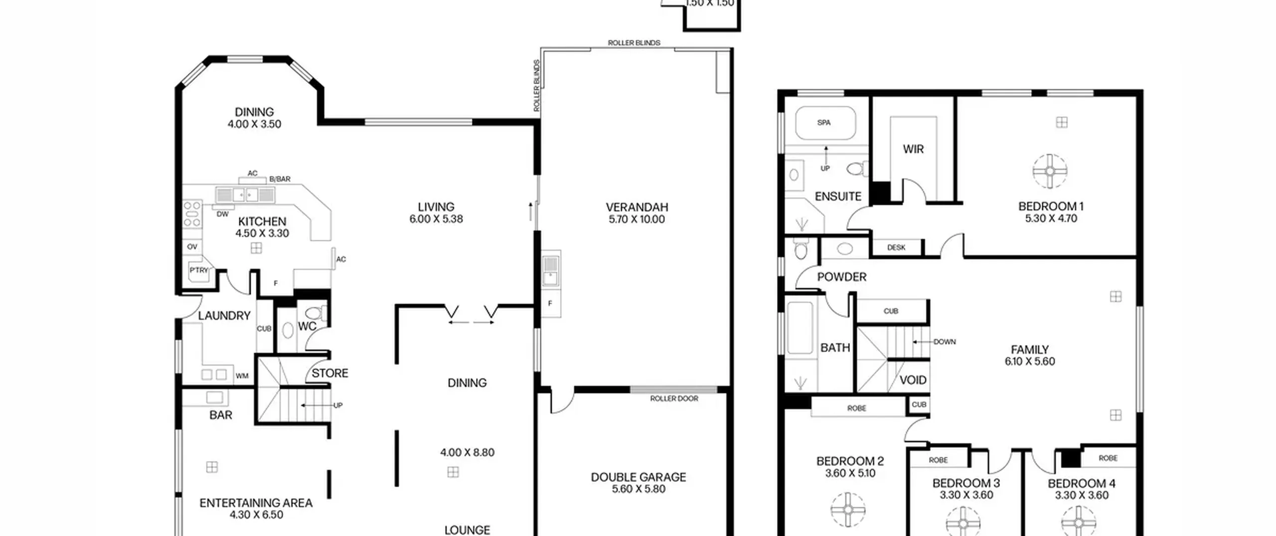
At the front of the home, a vast entertaining area with an in-built bar sets the tone for memorable gatherings, while an equally grand formal dining and lounge zone sits opposite, connected by wide, architectural openings that enhance the home’s polished flow. These spaces transition effortlessly into the open-plan kitchen, living and dining area, where the generous kitchen takes centre stage, offering an inviting hub for cooking, hosting and everyday living.
Indoor living extends seamlessly outdoors to an expansive, weather-protected verandah designed for year-round entertaining. Complete with an outdoor kitchen and the flexibility to fully enclose the space, this area connects naturally to the low maintenance backyard and the standout swimming pool, the perfect spot for lively celebrations or enjoying a summer dip.
Upstairs, the sense of space continues with a luxurious master suite that feels like its own private retreat, complete with a spacious walk-in robe and a lavish ensuite featuring a spa bath. The upper level also offers three generously sized bedrooms, complemented by a practical two-way bathroom and a central family area perfect for relaxing or enjoying a games night.
Thoughtfully designed to balance grandeur with comfort, this remarkable home is perfectly suited to those who love to entertain on a generous scale while enjoying everyday family living.
Features that make this home special:
Downstairs:
- Impressive front entertaining area with in-built bar and plenty of space for games or a pool table
- Elegant formal dining and lounge with wide, cased openings, creating an open flow to the entertaining area
- Expansive open-plan kitchen, living and dining area, with a portable Rinnai gas heater located in the living space
- Statement kitchen with 5 burner gas cooktop, Westinghouse double wall oven, dishwasher, corner pantry, double stainless steel sink, breakfast bar and an abundance of storage
- Well-appointed laundry with excellent storage, direct access from the kitchen, and external access
- Convenient separate WC
- Dedicated store room
- Double garage with panel lift door, plus roller door and pedestrian access to the verandah
- Substantial covered verandah with outdoor kitchen, mounted television and adjustable blinds for all-weather use
- Large shed with guest WC, ideal for entertaining, hobbies or storage
- Fully fenced swimming pool with shade sail and lighting for evening swims
- Easy-care lawn connecting the home to the pool area
- Additional garden shed
Upstairs:
- Spacious master suite with walk-in robe and deluxe ensuite with stunning tiles, raised spa bath, corner shower, vanity and toilet
- Three additional generous bedrooms, each with built-in robes and ceiling fans
- Central family retreat providing an additional living zone
- Practical two-way family bathroom with bath, shower, separate toilet and vanity with plenty of storage
Superbly located less than 9kms (approximately) from the Adelaide CBD and only minutes away from all the shopping and entertainment that Newton Village and Firle Plaza have to offer. Enjoy easy access to a variety of local parks and trails, including Linear Park and Morialta Conservation Park, as well as convenient public transport options. In close proximity to a variety of excellent public and private schools, including St Joseph's Hectorville, East Torrens Primary, Rostrevor College, Charles Campbell College and Norwood Morialta High.
All information contained herewith, including but not limited to the general property description, price and the address, is provided to Boffo Real Estate by third parties. We have obtained this information from sources we believe to be reliable; however, we have not verified and do not guarantee its accuracy. The information contained herewith should not be relied upon and you should make your own enquiries and seek advice in respect of this property or any property on this website.
The Vendor's Statement (Form 1), the Auction Contract and the Conditions of Sale will be available for perusal by members of the public - (A) at our office located at 78-80 North East Road, Walkerville for at least 3 consecutive business days immediately preceding the auction; and (B) at the place at which the auction is to be conducted for at least 30 minutes immediately before the auction commences.
Looking to purchase this property as an investment? Speak to our Property Management team to see how we can assist.
RLA 313174
Enquire about this property
