A Luxurious Private Escape on Impeccable Grounds with a Spectacular Pool!
Embrace the charm of contemporary modern living in one of the most tranquil and picturesque locations, offering breathtaking hillside views in your own private sanctuary with a spectacular swimming pool, situated far from the hustle and bustle.
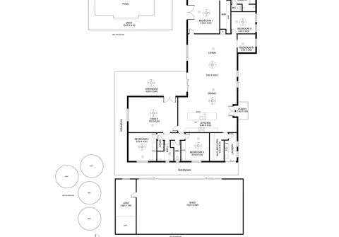
Set on an expansive 6.84 hectares (approximately), built by Fairmont Homes in 2010, this stunning home provides multiple living areas with the heart of the home featuring a divine open plan living, dining and kitchen area where you can host family and friends in a beautiful setting.
Step outside and embrace the genuine country lifestyle, with rolling hills, lush green landscapes, and the presence of livestock. Here, you can relish the serenity of a starry night, enveloped by the peace and calmness of the countryside.
Live the best of both worlds, offering a rural living whilst conveniently only being a 17-minute (approximate) drive to Westfield Tea Tree Plaza.
Features that make this home special:
- Master suite complete with a walk-in robe, ceiling fan and ensuite featuring dual basins, separate toilet, bath and dual shower heads, additionally providing your private escape through the dual doors to the back yard
- Additional three bedrooms all complete with ceiling fans; bedrooms two and three with built-in robes
- Valuable fifth bedroom or study
- Formal family room with ceiling fan and dual doors leading to the verandah
- Divine, open plan living, dining and kitchen area with ceiling fans and cosy wood fireplace
- Large, modern kitchen featuring stainless steel appliances including 90cm gas cooktop, Bosch dishwasher and electric 90cm oven, butler’s pantry, breakfast bar, stone benches, and ample cupboard space
- Sparkling main bathroom with shower and separate toilet
- Separate laundry with access to rear yard
- Convenient storage containers, providing the perfect solution for stowing away feed, wood or any unwanted items
- Beautiful timber floors in bedrooms and contemporary tiling in living areas
- Ducted reverse cycle air-conditioning
- Wraparound verandah with blinds to enclose, perfect for outdoor entertaining
- Electric heated, magnesium salt swimming pool including blanket and cleaner; surrounded by decking
- Pristine grounds with beautifully manicured, mature gardens and hedges that are sure to delight any gardening enthusiast
- Two orchards that include, figs, limes, quince, pear, apple, cherries, orange, almond, walnut
- Huge shed/rumpus room with power and alarm (15.20m x 7.80m approximately)
- Gym with loft, accessed from the shed
- Garden shed
Additional Features:
- Dam in paddock
- 4.5KW solar electrical system with 22 panels
- Electric roller shutters
- Chicken coop
- NBN dish
- Gas hot water system
- Front gate with camera
- 3 x 45,000L rainwater
- 30,000L grey water
- 10,000L rainwater on side of house
- 3 x Septic tank aerobic system and tank
Offering a brilliant lifestyle close by to a variety of restaurants and wineries that the Adelaide Hills has to offer. In close proximity to a variety of excellent schools in the Golden Grove and Gawler area and in the CBD. Multiple shopping centres are conveniently located a short distance away including The Stables and Fairview Green.
All information contained herewith, including but not limited to the general property description, price and the address, is provided to Boffo Real Estate by third parties. We have obtained this information from sources we believe to be reliable; however, we have not verified and do not guarantee its accuracy. The information contained should not be relied upon and you should make your own enquiries and seek advice in respect of this property or any property on this website.
Looking to purchase this property as an investment? Speak to our Property Management team to see how we can assist.
RLA 313174
