Spacious Entertainer's Delight
A rare opportunity is on offer to secure this well maintained family home in the sought after suburb of Golden Grove. Thoughtfully designed, this home provides multiple year round entertaining options with perfect natural flow from the internal living areas to the impressive outdoor entertaining area. Set on a generous 768sqm (approximate) block with plenty of room for your caravan, boat or trailer, there is nothing to do but move in and start enjoying the lifestyle this property offers!
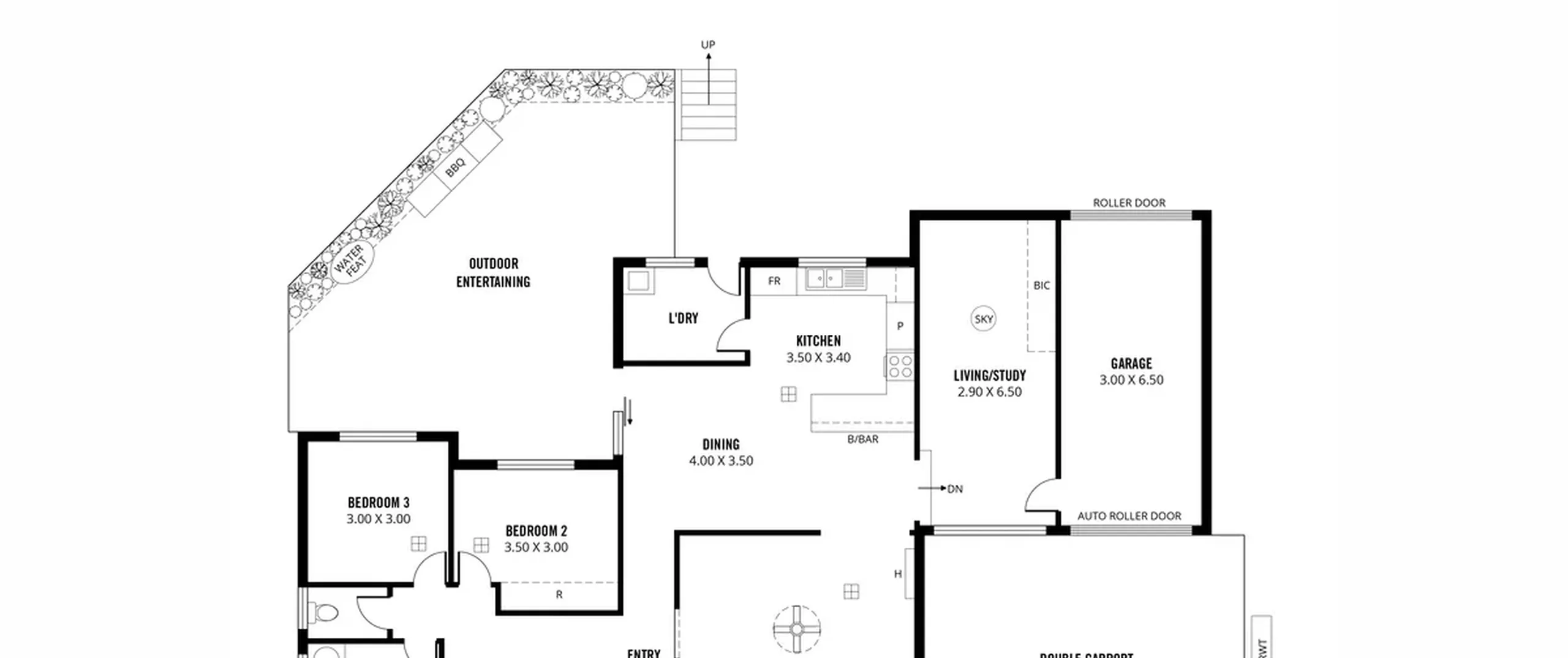
Features that make this home special:
- Large master bedroom with ceiling fan, walk-in robe and ensuite
- Good sized bedrooms 2 and 3, bedroom 2 with built-in robe
- Spacious, light-filled lounge with ceiling fan and heater
- Modern kitchen with gas cooktop, stainless steel appliances, ample bench and cupboard space and breakfast bar
- Dining area adjacent kitchen
- Additional living/study area with built-in storage and skylight, and potential to convert to fourth bedroom
- Main bathroom with separate bath and shower + separate toilet
- Separate spacious laundry
- Ducted evaporative cooling throughout
- Spectacular paved outdoor entertaining area with built-in BBQ and water feature
- Manicured gardens
- Fully fenced, secure rear yard with garden shed, shade sail and rainwater tanks
- Double carport
- Single garage with automatic roller door
- Drive through access to double garage with sliding door and power
- Horse-shoe driveway providing additional off-street parking
Ideally located close to a variety of quality schools, local shops and sporting and recreational facilities. Several public transport options are all nearby. All of this and only a short drive to all of the shopping and entertainment offered at Golden Grove Village and Westfield Tea Tree Plaza.
For further information please contact Robert Lonie on 0419 129 009, Scott McNeela on 0455 800 848 or 8269 7711 (office).
RLA 200591
