Amazing Potential
This 3 bedroom home situated on a generous 725sqm block (approximately) with a 18m frontage (approximately) offers a great opportunity for investors or owner occupiers. Renovate, re-develop or subdivide (subject to council consent) the choice is yours!
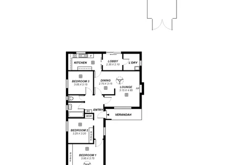
The dwelling currently offers:
- 3 Good sized bedrooms, with built-in robes to bedrooms 1 and 2
- Light filled lounge / dining area
- Functional kitchen/dining area with gas cooktop + ample bench and cupboard space
- Tidy bathroom with bath + separate w/c
- Separate laundry
- Ducted evaporative cooling
- Secure fully fenced front and rear yards
- Garage at rear of property
- Potential to sub-divide (subject to council consent)
There is the option to upgrade and restore or demolish and build your dream home (subject to council consent). Explore your options! Located close to local and major shopping precincts, public transport and a variety of schools and local parks.
For further information please contact Robert Lonie on 0419 129 009 or Mark Fricker on 0413 000 845.
RLA 265613
The Vendor's Statement (Form 1), the Auction Contract and the Conditions of Sale will be available for perusal by members of the public -
(A) at the office of the agent for at least 3 consecutive business days immediately preceding the auction; and
(B) at the place at which the auction is to be conducted for at least 30 minutes immediately before the auction commences.
