Refined Modern Living with Park Views
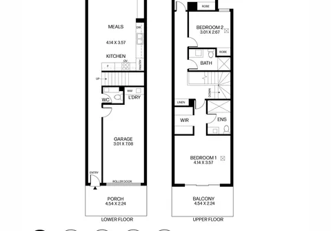
Set opposite a peaceful park, this refined Torrens titled residence delivers a beautiful floorplan with modern style and abundant light. Open plan living is enhanced by large format tiling and a recessed ceiling, creating space and flow for everyday living and relaxed entertaining.
The kitchen connects seamlessly with living and dining, featuring generous storage and a built in TV unit within the living room. Sliding doors extend the space to a low maintenance rear yard with artificial lawn and garden beds adding greenery.
Downstairs is ideally set-up for hosting, while upstairs forms a private retreat for rest and privacy. Bedrooms are quietly positioned, serviced by ducted air conditioning throughout, linen press storage, and a thoughtful layout that suits growing households. The master suite is a lovely escape complete with a private balcony with retractable screen, a modern ensuite and a valuable walk-in robe.
Features that make this home special:
- Torrens titled
- Park outlook and ideal position
- Modern open plan kitchen, living and dining with sleek finishes
- Kitchen with ample storage, gas cooktop, Westinghouse dishwasher, oven and dual stainless-steel undermount kitchen sinks
- Large format tiling and recessed ceiling
- Built in TV unit cabinetry
- Private rear yard with artificial lawn
- Master suite with ensuite, walk-in robe, dual layered curtains and balcony with valuable retractable screen
- Bedrooms 2 and 3 both with built-in robes
- Ducted air conditioning throughout
- Low maintenance design
- Secure garage with roller door and laundry provisions
With a park outlook and minimal upkeep required, this home suits professionals, young families and investors seeking modern comfort. Only 8kms (approximately) from the CBD, this exceptional location enables easy access to city life, shopping at Sefton Plaza and Northpark, parks, playgrounds and public transport. With excellent schools nearby and everything you need close at hand, this is a place where comfort, convenience and community come together.
All information contained herewith, including but not limited to the general property description, price and the address, is provided to Boffo Real Estate by third parties. We have obtained this information from sources we believe to be reliable; however, we have not verified and do not guarantee its accuracy. The information contained should not be relied upon and you should make your own enquiries and seek advice in respect of this property or any property on this website.
Looking to purchase this property as an investment? Speak to our Property Management team to see how we can assist.
RLA 313174
Enquire about this property
