Opportunity Awaits
This home located in the popular suburb of Enfield with a land size of 716sqm (approximate) and frontage of 16.76m (approximate), offers the new owners a multitude of options. Commandingly positioned, this blank canvas home is a worthy investment with opportunities to make it your own and add value with a simple cosmetic face-lift or explore redevelopment options (Subject to Council Consent). Equally the land size may appeal to those seeking a fantastic location to build their dream home (Subject to Council Consent).
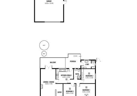
Features that make this home special:
- Large bedroom 1 with ceiling fan
- Good sized bedroom 2 and 3; bedroom 2 with built-in robe
- Open plan lounge and dining with heater
- Functional Kitchen with gas cooking, ample cupboard space and meals area
- Main bathroom with separate shower
- Practical laundry with built-in cupboard and additional toilet
- Elevated pergola area
- Large fully fenced yard with 2x rain water tanks and aviary
- Sizeable garage in rear yard with automatic roller door and pit
- Easy lane way access at rear
- 16x solar panels
Located conveniently close to all suburban amenities and set amongst a vibrant family friendly local community. Greenacres and Northpark Shopping Centres, Regency Plaza and Sefton Plaza are all close by for your weekly shopping requirements, and local schools such as Prospect North Primary, Our Lady of the Sacred Heart School, Enfield Primary, Hampstead Primary are all easily accessed in the immediate area. Public transport is a short walk to Main North Rd or Regency Road.
Don't miss this opportunity!
For further information, please contact Jimmy Wu on 0417 874 084 or 8269 7711 (office).
RLA 200591
The Vendor's Statement (Form 1), the Auction Contract and the Conditions of Sale will be available for perusal by members of the public -
(A) at our office located at 87 North East Road, Collinswood for at least 3 consecutive business days immediately preceding the auction; and
(B) at the place at which the auction is to be conducted for at least 30 minutes immediately before the auction commences.
