Indulge in the Low Maintenance Living this Home has to Offer!
This modern, well maintained three-bedroom home is set on a spacious 442sqm block approximate, featuring a beautifully landscaped garden, ample outdoor space for entertaining, and a convenient layout that maximizes natural light and comfort, making it the perfect haven for families.
Whether you're a first-time buyer, investor, or looking for a place to call home, this property offers versatility and opportunity.
Features that make this home special:
- Built 1992, and well maintained
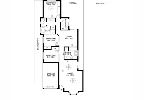
- 3 Bedrooms all with built in robes, master has ceiling fan
- Separate formal lounge room with feature bay window, ceiling fans and gas heater
- A spacious open dining area that seamlessly connects to the outdoor entertaining space
- Neat & tidy kitchen with gas stove, built-in pantry and breakfast bar
- Quality flooring throughout
- 2-way bathroom featuring a separate vanity area with ample storage space
- Laundry with sliding door to the rear yard
- All weather outdoor entertaining
- Single carport with roller door
- Large rear landscaped private yard with lawn and garden beds
- Garden shed
- Front fence with gates
Just minutes away from the shopping and entertainment at Munno Para Shopping City and Elizabeth City Centre, this home is ideally situated near a variety of schools, including Elizabeth North Primary School, Trinity College Blakeview, Mark Oliphant College, and St Columba College. Additionally, it offers proximity to Argana Park and convenient transport options.
All information contained herewith, including but not limited to the general property description, price and the address, is provided to Boffo Real Estate by third parties. We have obtained this information from sources we believe to be reliable; however, we have not verified and do not guarantee its accuracy. The information contained should not be relied upon and you should make your own enquiries and seek advice in respect of this property or any property on this website.
Looking to purchase this property as an investment? Speak to our Property Management team to see how we can assist.
RLA 313174
