Quiet and Secure with Hills Views from your Backyard!
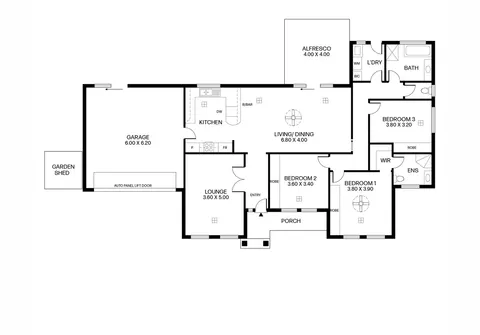
Nestled in a desirable location at the end of a quiet cul-de-sac on a comfortable low maintenance allotment of 459sqm (approximately), this 3 bedroom home boasts an elegant rendered façade and a beautiful open plan living that flows seamlessly to the alfresco and landscaped rear yard with superb views of Adelaide Hills and Torrens Valley.
Complimented with a modern elegant style, there is nothing to do but simply move in and enjoy the lifestyle this fabulous property offers!
Features that make this home special:
- Master bedroom with walk-in robe, built-in robe, ceiling fan and ensuite
- Good sized bedrooms 2 and 3, both complete with built-in robes
- Formal lounge room
- Light-filled open plan living/dining and kitchen area with ceiling fan
- Stylish kitchen with dishwasher, gas cooktop, breakfast bar and ample bench and cupboard space
- Main bathroom with separate bath and shower + separate toilet
- Separate laundry with access to rear yard
- Near new Mitsubishi ducted reverse cycle air-conditioning
- Paved alfresco with pitched roof, perfect for outdoor entertaining
- Solar electrical system with 8 panels
- Fully fenced, landscaped rear yard with garden shed
- Double garage with automatic panel lift door, internal access and external access
- Instant gas hot water
- Crimsafe security screens
Just a short walk to Balmoral Reserve and Linear Park. Quickly cut through to Paradise Interchange for easy access straight to the city on the O-Bahn. Or, join the others and ride your bike along the River Torrens as the daily commute to work. All of this and only 12km (approximately) to the Adelaide CBD and a short drive to all of the shopping and entertainment options that Tea Tree Plaza has to offer.
For further information please contact Robert Lonie on 0419 129 009 or 8269 7711 (office).
RLA 200591
The Vendor's Statement (Form 1), the Auction Contract and the Conditions of Sale will be available for perusal by members of the public -
(A) at our office located at 87 North East Road, Collinswood for at least 3 consecutive business days immediately preceding the auction; and
(B) at the place at which the auction is to be conducted for at least 30 minutes immediately before the auction commences.
