Simplicity Beats Complexity
This well-cared for home provides a great opportunity for those seeking a secure and private property and offers an enviable low maintenance lifestyle. Appealing to those already living in the area and looking to downsize, first home buyers, young professionals and astute investors, this home offers a 'move in with nothing to do' opportunity.
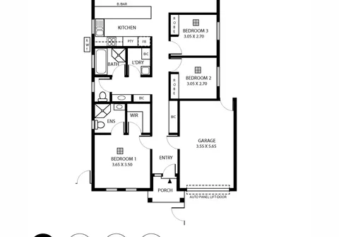
Features that make this home special:
- Large master bedroom with walk-in robe and ensuite
- Good sized bedrooms 2 and 3, both with built-in robes
- Light filled open plan lounge area
- Stylish kitchen with gas cooktop, breakfast bar and ample bench and cupboard space
- Dining room adjacent kitchen
- Three-way main bathroom with separate bath and shower + separate toilet
- Separate laundry
- Additional storage space throughout
- Ducted air conditioning throughout
- Single garage with direct internal entry and automatic door
- Private and secure courtyard at the front of the property
- Fully fenced, low maintenance rear yard
Located only 8.5kms (approximately) from the Adelaide CBD and only minutes away from multiple shopping options. In close proximity to parks, public transport options, sporting precincts and a variety of schools.
For further information please contact Jimmy Wu on 0417 874 084 or 8269 7711 (office).
RLA 200591
