Sunny Seaside Location with Endless Potential!
Located in the sunny, seaside suburb of Christies Beach is this 688sqm (approximate) valuable corner allotment. Boasting a 22.4m (approximate) onto Elgin Avenue and a 30.4m (approximate) frontage onto Robertson Street with a 33.8m (approximate) depth.
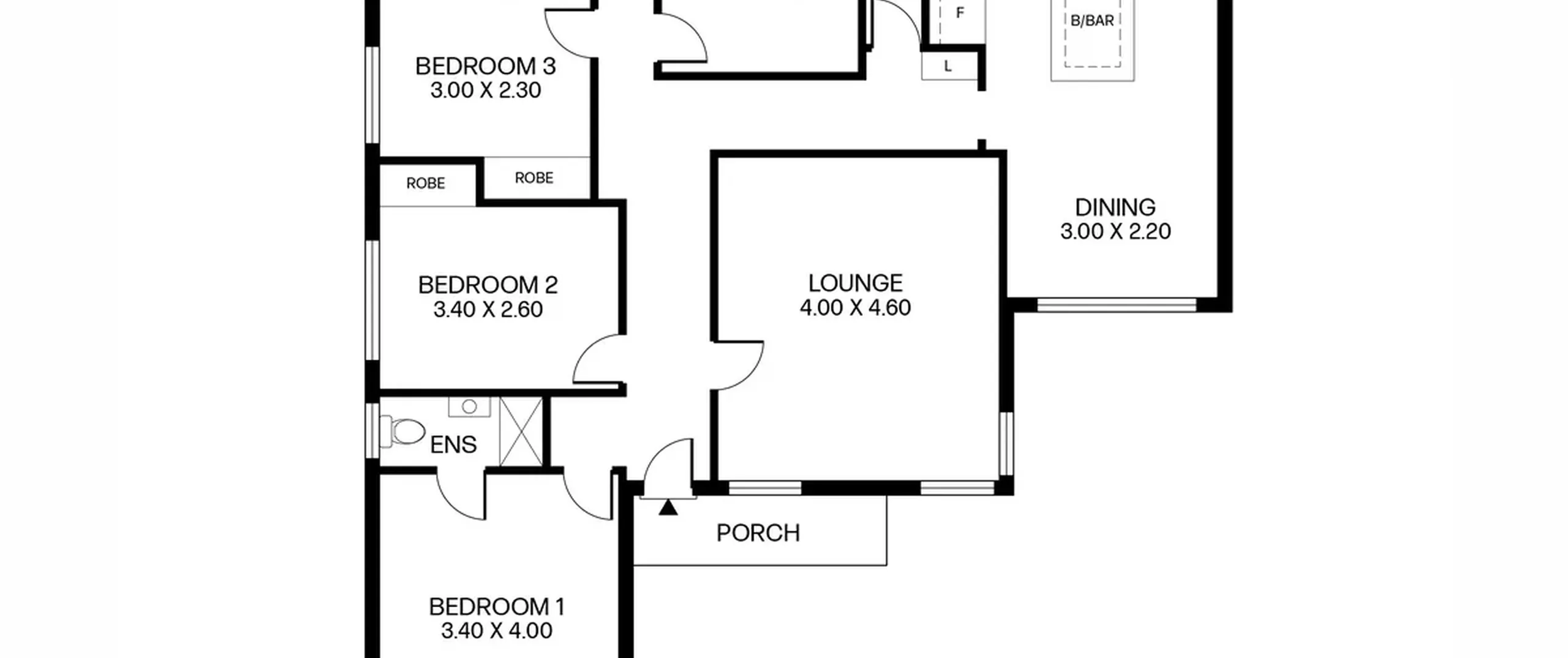
Inside you will find that the home is in original condition and complete with four generous in size bedrooms, a central main bathroom and ensuite to bedroom one. With a suitable and separate lounge space overlooking the front of the home, dine in kitchen with a gas standalone oven, cooktop and island bench allows for ample cupboard spaces and the perfect preparation space for the avid cook. A secure rear yard where you’ll be sure to love the large, grassed area, verandah and secure carport to the rear.
The perfect opportunity to secure this coastal home on an ideal corner allotment, live in and enjoy the sea breeze, rent out and reap the rewards, build your dream seaside home or redevelop (subject to planning consents).
Features that make this home special:
- Large main bedroom with ensuite
- Bedrooms 2, 3 and 4 of good size; bedrooms 2 and 3 with built-in robes
- Separate lounge room filled with natural light
- Open dining and kitchen with direct external access
- Practical kitchen with standalone gas oven and cooktop, ample cupboard space and island bench
- Central main bathroom with separate shower and bath
- Separate toilet for added convenience
- Separate laundry with external access
- Undercover verandah overlooking the low-maintenance backyard
- Undercover carport to the side of the property with direct internal access and open space for additional off-street parking
Situated only a short drive to Colonnades Shopping Centre, Noarlunga Public Hospital and a variety of school are close by. Public transport options make for easy access to the CBD as well as the use of the Southern Expressway. All this and less than 2km (approximate) to Christies Beach foreshore and all the cafes and restaurants that are on offer!
For further information please contact Gavin Apacible on 0455 800 848, Robert Lonie on 0419 129 009 or 8269 7711 (office).
All information provided has been obtained from sources we believe to be accurate, however, we cannot provide any guarantee and we accept no liability for any errors or omissions (including but not limited to a property's land size, floor plans and size, building age and condition). Interested parties should make their own inquiries and obtain their own legal advice.
The Vendor's Statement (Form 1), the Auction Contract and the Conditions of Sale will be available for perusal by members of the public - (A) at our office located at 78-80 North East Road, Walkerville for at least 3 consecutive business days immediately preceding the auction; and (B) at the place at which the auction is to be conducted for at least 30 minutes immediately before the auction commences.
RLA 313174
