Endless Potential in Brahma Lodge!
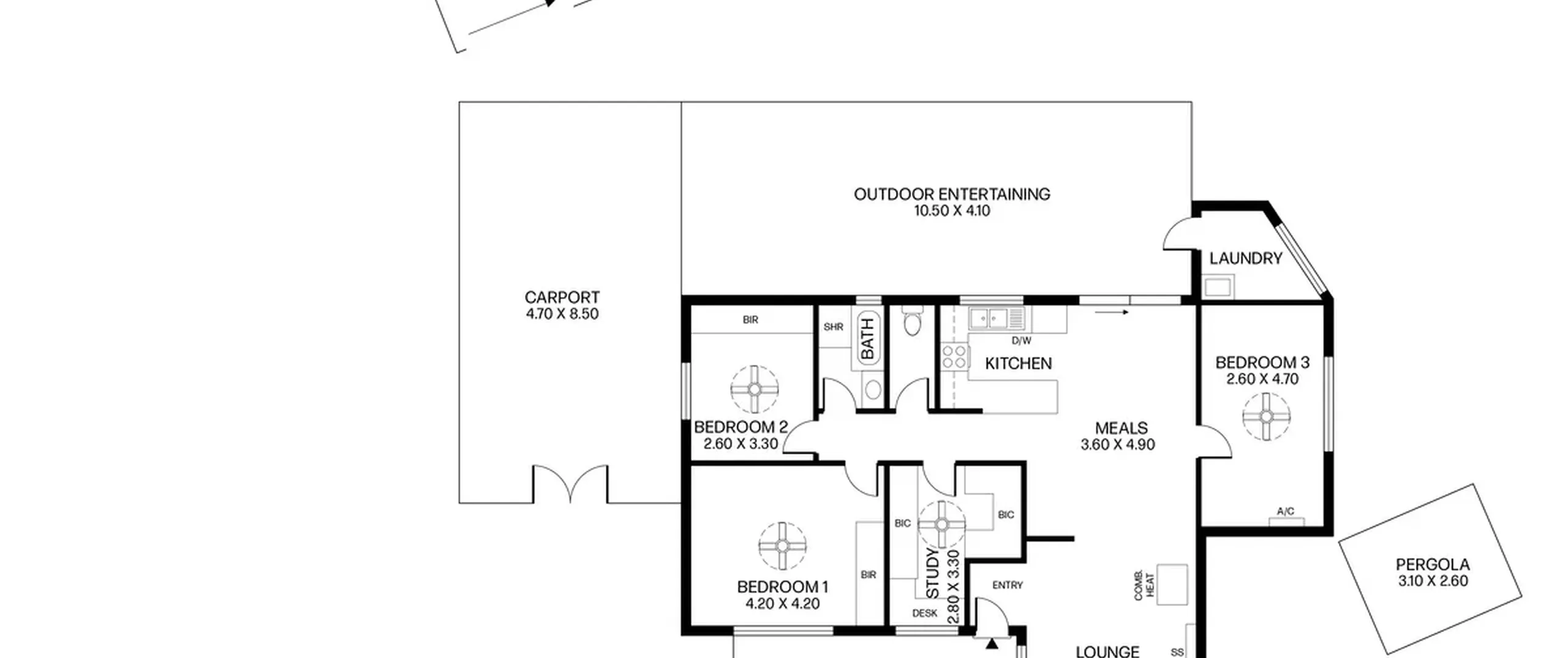
Indulge in easy-care living with this spacious home set on a large 710sqm (approximate) corner allotment. The layout offers three bedrooms and one bathroom, plus a light-filled and spacious lounge room, meals area and a quality kitchen ready for family dinners.
When it’s time to relax, you are spoilt for choice with a range of living spaces to enjoy. You can gather with friends under the outdoor entertaining area as you fire up the BBQ while the kids and pets play freely in the spacious backyard. Here, you will also find ample shed storage, providing the perfect space for any DIY enthusiast to complete their next project.
Your new home is inset on a quiet street with a double length carport with drive-through access and off-street parking for multiple cars. Easy-care gardens surround the home and you are also treated to a central location within a short distance of Brahma Lodge Primary School and close to shops, parks and public transport.
Features that make this home special:
- Bedrooms 1 and 2 complete with built-in robes and ceiling fans
- Spacious bedroom three offering ceiling fan and air conditioning
- Light filled lounge upon entry with ceiling fan, split system air conditioner and combustion heater for year-round comfort
- Meals area adjacent kitchen
- Well-appointed kitchen featuring ample cupboard and bench space plus dishwasher
- Study with built-in cupboards and desk, perfect for those who work from home
- Centrally located main bathroom with bath over shower
- Separate toilet
- External laundry
- Large outdoor entertaining area plus pergola area to the side of the home, proving multiple entertaining options
- Fully fenced, low maintenance backyard boasting a garden shed, storage area and large shed
- Gated carport with drive-through access to the backyard
Conveniently located in close proximity to Salisbury Primary School, Salisbury East High School and Brahma Lodge Primary School while Cockburn Green and Brahma Lodge Oval are both only moments away. A five-minute drive will take you to the nearby Parabanks Shopping Centre or the Salisbury train station. All of this and only a quick access to the Adelaide CBD via the Salisbury Highway.
Please note: The contract for this property is subject to a Vendor Rent Back for a term of 6 months.
For further information please contact Carlos Carosi on 0428 909 228, Jimmy Wu on 0417 874 084 or 8269 7711 (office).
All information provided has been obtained from sources we believe to be accurate, however, we cannot provide any guarantee and we accept no liability for any errors or omissions (including but not limited to a property's land size, floor plans and size, building age and condition). Interested parties should make their own inquiries and obtain their own legal advice.
RLA 313174
