Fantastic Opportunity!
This 3 bedroom home situated on a generous 850sqm block (approximately) with an 23m (approximate) frontage offers a great opportunity for investors or owner occupiers. Renovate, re-develop or subdivide (subject to council consent) the choice is yours!
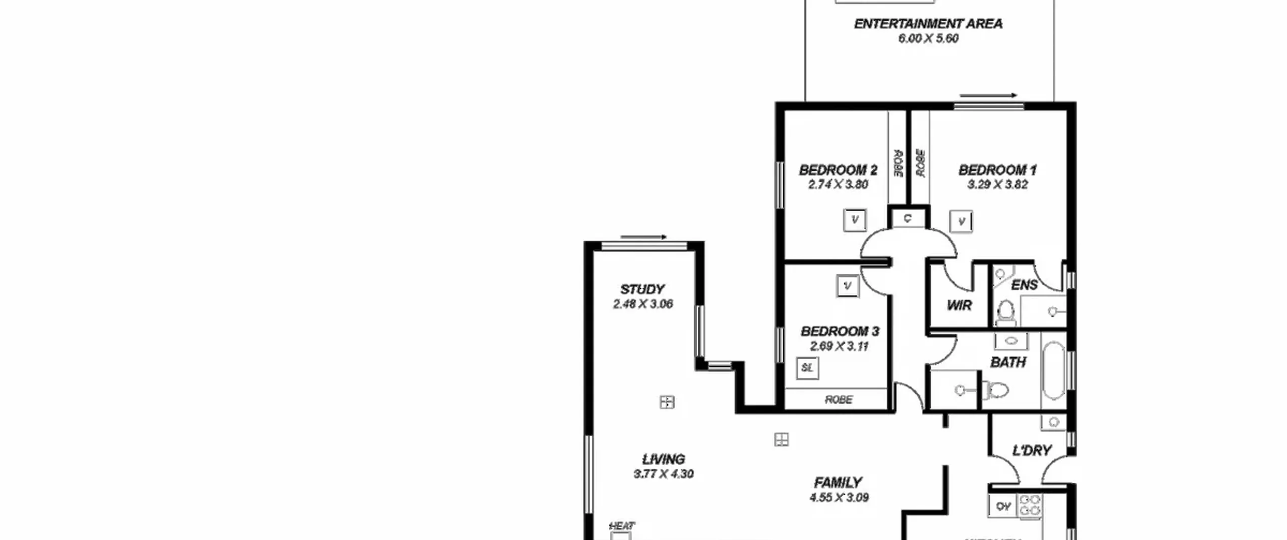
Features that make this home special:
- Master bedroom with walk-in robe, built-in robe and ensuite
- Spacious bedrooms 2 and 3, both with built-in robes
- Light filled lounge and dining room with air conditioner
- Kitchen with electric cooktop, walk-in pantry and dishwasher
- Large, open plan family and living room
- Study area
- Neat and tidy main bathroom with separate bath and shower
- Separate laundry
- Ducted evaporative air conditioning throughout
- Roller shutters to front windows
- Pergola, ideal for outdoor entertaining area with 8 person spa
- Expansive rear yard to suit the entertainer with over 50sqm (approximately) of paved outdoor area
- Shed/workshop
- Carport for up to 4 vehicles with 3m high roof and drive through access, ideal for the boat or caravan
- Off street parking for up to 9 vehicles with garage at the rear of the property
- Picturesque views overlooking Tea Tree Gully Golf Course
- Can be easily converted to 5 bedrooms
Located in the in-demand suburb of Banksia Park and only a short distance to Banksia Park International High School, Banksia Park Primary School and Kindergarten and Fairview Park Primary School. With the Tea Tree Gully Sporting Complex and Tea Tree Gully Golf Course both just around the corner and Fairview Green Shopping Centre and public transport options also nearby, the convenience and lifestyle on offer here is enviable.
For further information please contact Robert Lonie on 0419 129 009 or Scott McNeela on 0455 800 848 or 8269 7711 (office).
RLA 200591
