Quintessential Lifestyle
This well presented, 1 bedroom apartment has been carefully maintained throughout and is one of the finest investments in the current market place. Whether you are looking for a hassle free, secure investment, or are a first home buyer wanting somewhere to live in the heart of the city, you cannot miss this opportunity!
Features that make this home special:
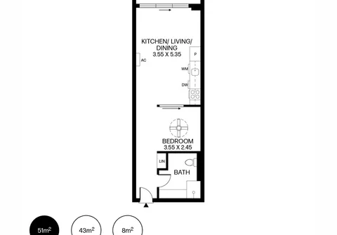
- Good sized master bedroom with ceiling fan
- Spacious, light filled open plan living and dining area
- Modern kitchen with dishwasher and incorporating a European laundry
- Gorgeous main bathroom with shower and toilet
- Split system air conditioning
- Intercom for added security
- Modern neutral décor throughout
- Balcony overlooking the heart of Adelaide
- Currently tenanted to a fantastic tenant for $315/week on a fixed lease basis till 7th of July 2022
On-site resort style facilities include:
- Indoor pool
- Spa
- Steam room
Additional Information:
- Strata fee; admin fund $558/quarter
- Sinking fund $145/quarter
- Sewer $73.5/quarter
- Water supply as per SA water invoice is $68.6 for the period of 1st of October to 31st of December 2021
- Share of group water use as per SA water invoice is 0.35% of the group total. For the period of 26th of May to 30st of June (36 days) is approximately. $10.02 (0.35% share of total of $2863.42 as indicated on the invoice) and for the period of 1st of July to 19th of Aug 2021 (49 days) is approximately $13.79 (0.35% share of $3940.14)
Minutes away from the exceptional restaurants and bars in the CBD and only minutes away from the gourmet shopping that Central Markets and Gouger Street has to offer. Adelaide University, University SA and TAFE are all very close with secondary education zoning for Adelaide High School. Public transport options are easily accessible with the tram, Adelaide Train Station and major bus stops all nearby.
For further information please contact Jimmy Wu on 0417 874 084, Carlos Carosi on 0428 909 228 or 8269 7711 (office).
All information provided has been obtained from sources we believe to be accurate, however, we cannot provide any guarantee and we accept no liability for any errors or omissions (including but not limited to a property's land size, floor plans and size, building age and condition). Interested parties should make their own inquiries and obtain their own legal advice.
RLA 200591
