Prime Location!
IMPORTANT NOTE: Only limited spots are available to view the property at inspection. Submitted applications will be given priority to view. Please complete an application online through the ‘Apply for this property’ button on the property listing on our website (boffo.com.au) with all relevant documentation included.
PLEASE NOTE: Face masks are required to be worn to view this property and individuals from one group limited to 2 people only.
Available: 24th January 2022
Lease Term: 12 Months
Pets: Negotiable
Features of the home include:
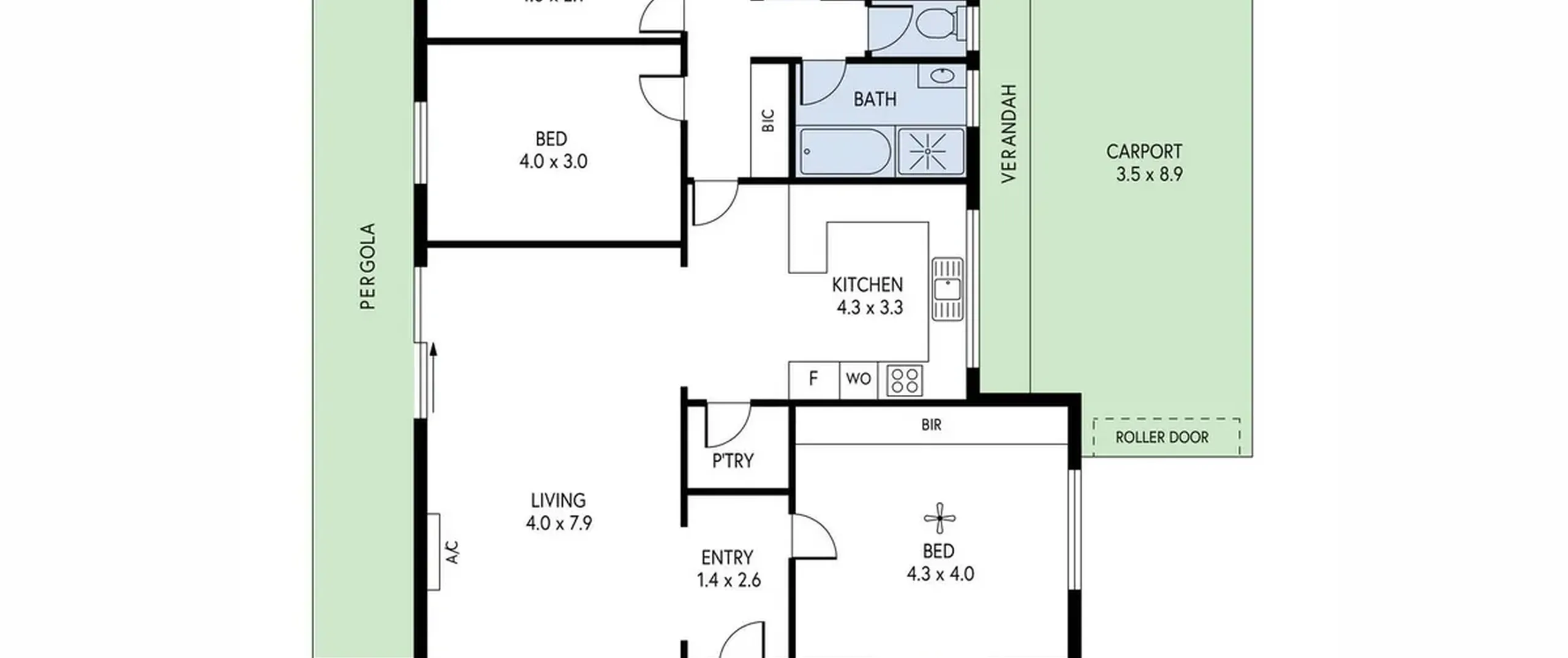
- Three good sized bedrooms
- Open plan kitchen, living and dining
- Functional kitchen with gas cooking and walk-in pantry
- Neat and tidy bathroom with a separate bath and shower
- Single carport with roller door
- Drive through access to the rear yard
- Polished timber flooring
- Split system air conditioner to the living area
- Front shaded verandah
EXCLUSIONS: Shed
Access to the nearby Obahn busway makes for an easy CBD commute, or if you're feeling more active the bike tracks of Linear Park are moments away. There is an abundance of shops, recreation parks, walking trails and the recently opened Hope Valley Reservoir to enjoy, you'll forget you're still so close to the city. For the families, there's an ample selection of public and private schooling options within walking distance.
Water Charges: Tenants to pay all water supply charge & all water usage
The Landlord cannot guarantee that the property has an active phone line or ADSL/NBN connections or in an internet availability area.
TO VIEW THIS PROPERTY: please enquire via the ‘Book an Inspection’ or ‘Request an Inspection’ button and we will respond with an inspection time (if available). You must be registered for the inspection to attend. If no inspection times are currently available, please submit your details and you will be advised instantly when a new time is available.
By registering, you will be instantly informed of any updates, changes.
RLA 200591
