Style Comfort and Convenience in a Sought-After Location!
Available: 24th April
Lease Term: 12 months
Tucked away on a peaceful street surrounded by quality homes, this property offers a serene and private retreat.
Key Features of This Home:
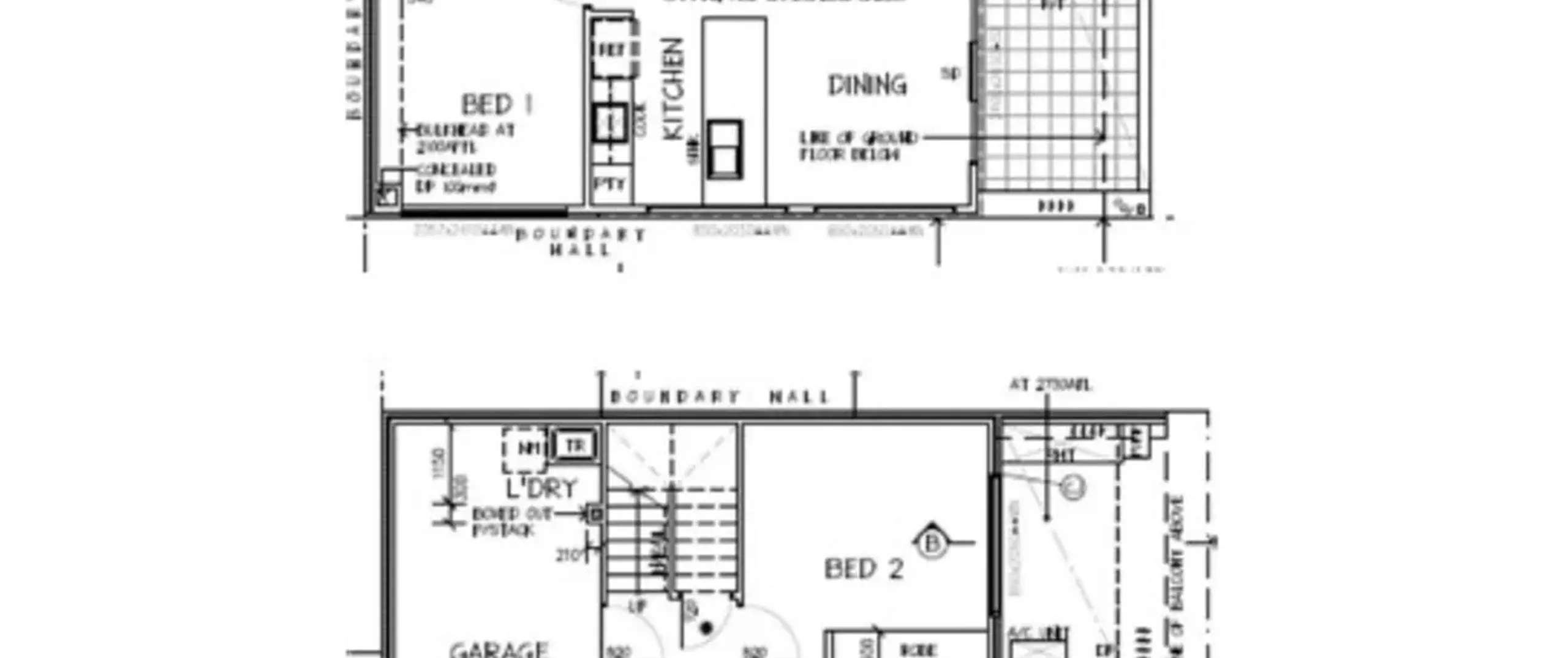
Upper Level:
- Modern, stylish kitchen equipped with a stainless steel Smeg dishwasher, Fisher and Paykel fridge, Smeg oven, and gas cooktop, offering generous cupboard and bench space, plus a breakfast bar
- Expansive open-plan dining and living area, with glass sliding doors leading to a large private balcony with views
- Master bedroom featuring carpeting, a spacious walk-in robe, and an ensuite with an oversized shower, vanity with extra storage, and a large mirror
Lower Level:
- Bright and airy bedroom 2 with built-in mirrored sliding doors, a built-in robe, and carpeted flooring
- Immaculate main bathroom featuring floor-to-ceiling tiles, a spacious shower, and a vanity with plenty of storage
- Versatile study area or third bedroom with floating laminate floors
- Ample under the stairs storage
- Single car automatic garage with remote control, direct access to the home and stylish epoxy flooring
Additional Features:
- Ducted heating and cooling throughout
- Secure alarm system for peace of mind
INCLUSIONS: Fridge
West Lakes offers residents a perfect blend of suburban tranquility and urban convenience. The heart of the suburb is the scenic West Lakes Shore, where residents can enjoy stunning views of the lake. The area is also renowned for its, lush green spaces, and family-friendly amenities, including schools, shopping centres, and dining options.
Water Charges: Tenants to pay all water supply charge & all water usage
All information contained herewith, including but not limited to the general property description, price and the address, is provided to Boffo Real Estate by third parties. We have obtained this information from sources we believe to be reliable; however, we have not verified and do not guarantee its accuracy. The information contained should not be relied upon and you should make your own enquiries and seek advice in respect of this property or any property on this website.
TO VIEW THIS PROPERTY: please enquire via the ‘Book an Inspection’ or ‘Request an Inspection’ button and we will respond with an inspection time (if available). You must be registered for the inspection to attend. If no inspection times are currently available, please submit your details and you will be advised instantly when a new time is available.
By registering, you will be instantly informed of any updates, changes.
Looking for investment advice? Speak to our Property Management team to see how we can assist.
RLA 313174
