Serene, Comfortable and Convenient Living
IMPORTANT NOTE: Only limited spots are available to view the property at inspection. Submitted applications will be given priority to view. Please complete an application online through the ‘Apply for this property’ button on the property listing on our website (boffo.com.au) with all relevant documentation included.
PLEASE NOTE: Face masks are required to be worn to view this property and individuals from one group limited to 2 people only.
Available: 25th March
Lease Term: 12 months
Pets: Negotiable
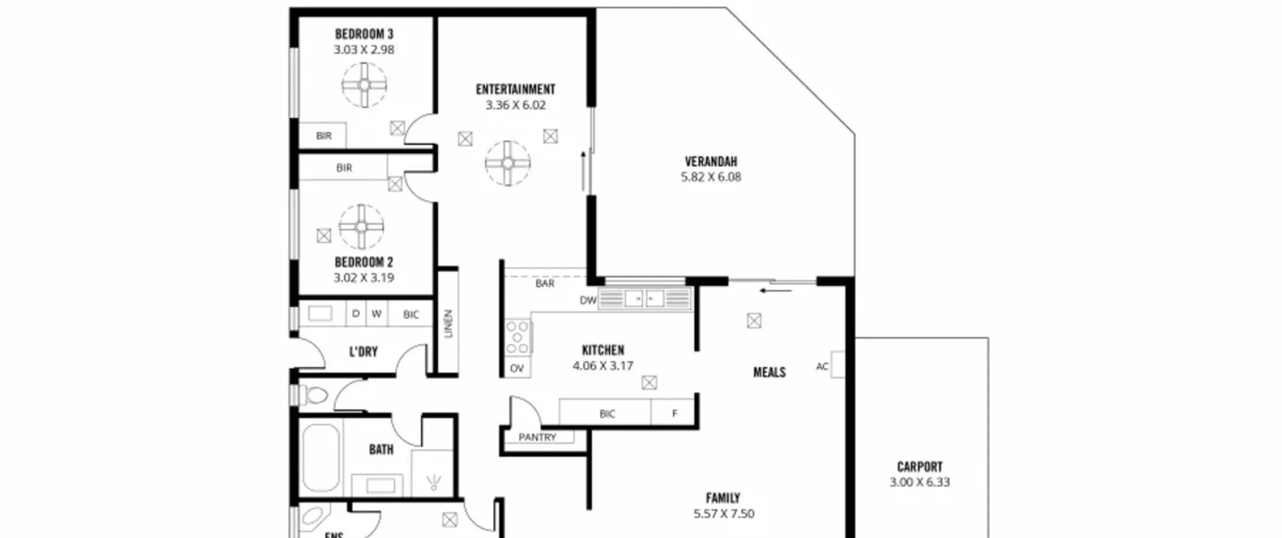
A rare opportunity is on offer to secure this well maintained family home in the popular suburb of Tea Tree Gully. Thoughtfully designed, this home provides multiple year round entertaining options with perfect natural flow from the generous internal living areas to the impressive outdoor entertaining area.
Boasting spectacular views of Antsey Hill and nestled in the lovely surrounds of Tea Tree Gully on a quiet and friendly street, the lifestyle on offer is enviable. With undercover carport and ample off street parking, there is plenty of room for your caravan, boat or trailer. This home is sure to impress the whole family!
Features that make this home special:
- Large master bedroom with ceiling fan, ensuite and walk-in robe
- Good sized bedrooms 2 and 3, both with ceiling fan and built-in robes
- Entertainment room with ceiling fan
- Light filled family room
- Meals area adjacent kitchen with air conditioner
- Modern kitchen with ample bench and cupboard space, stainless steel appliances, black mirror splash back, powerpoints with USB port, gas oven with electric stove top, walk-in pantry and breakfast bar
- Near new vinyl flooring and tiles
- LED lighting throughout
- Bathroom with separate bath and shower + separate toilet
- Renovated laundry with ample storage space
- Ducted evaporative cooling throughout
- Ducted gas
- Spacious verandah perfect for outdoor entertaining
- Large, secure tiered back garden with plenty of room to play
- Large 3x4m garden shed
- Single carport with automatic roller door
- Additional off street parking for up to 4 vehicles, perfect for your trailer, camper, boat or caravan
- 1kw solar electrical system for energy efficiency
- Roller shutters and security screen doors and windows throughout
- Bosch security alarm
- Motion sensor lighting
Exclusions: Fireplace in the lounge
Located only minutes away from St Agnes Shopping Centre, a variety of sought after schools including St Agnes Primary School, parks including Anstey Hill and public transport options including the city via the O-Bahn. In close proximity to all of the shopping and entertainment that Tea Tree Plaza has to offer.
Water Charges: Tenants to pay all water supply charge & all water usage
The Landlord cannot guarantee that the property has an active phone line or ADSL/NBN connections or in an internet availability area.
TO VIEW THIS PROPERTY: please enquire via the ‘Book an Inspection’ or ‘Request an Inspection’ button and we will respond with an inspection time (if available). You must be registered for the inspection to attend. If no inspection times are currently available, please submit your details and you will be advised instantly when a new time is available.
By registering, you will be instantly informed of any updates, changes.
RLA 200591
