Low Maintenance Unit in Prime Location
Available: 25th March
Lease Term: 12 months
Indulge in the low maintenance living this unit has to offer.
Features that make this home special:
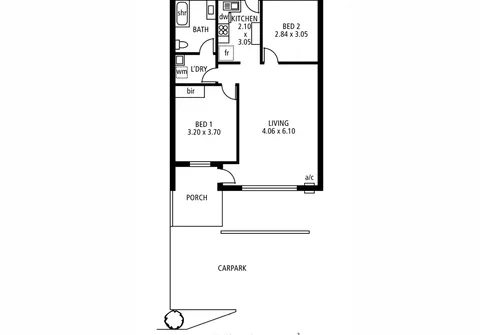
- 2 Good sized bedrooms, main bedroom with built in robe
- Bedroom 2 offers overhead storage
- Fantastic open plan dining and living area boasting plenty of natural light
- Light-filled living area with split system air conditioning
- Well-appointed kitchen with gas cooktop, oven, dishwasher and ample cupboard and bench space
- Bright and airy main bathroom with bath, shower and toilet
- Separate laundry
- Low maintenance rear courtyard
Payneham, located in South Australia, offers a variety of local amenities for residents and visitors. The area features convenient access to shops, cafes, and dining options, particularly along Payneham Road. The Payneham Shopping Centre provides a range of retail outlets, while nearby parks, including the Payneham Oval and the expansive Felixstow Reserve, offer outdoor recreational spaces. The suburb is also well-connected by public transport, making it easy to travel to nearby areas such as the Adelaide CBD. Overall, Payneham combines a peaceful residential environment with easy access to essential services.
Water Charges: Tenants to pay all water supply charge & 1/25 share of water usage
Please Note: This property is part of a Strata/Community plan, additional approval for pets may be required. This process involves seeking consent from the corporation, which may include a notice period. Approval is not guaranteed and is subject to the rules and regulations of the Strata/Community plan.
All information contained herewith, including but not limited to the general property description, price and the address, is provided to Boffo Real Estate by third parties. We have obtained this information from sources we believe to be reliable; however, we have not verified and do not guarantee its accuracy. The information contained should not be relied upon and you should make your own enquiries and seek advice in respect of this property or any property on this website.
TO VIEW THIS PROPERTY: please enquire via the ‘Book an Inspection’ or ‘Request an Inspection’ button and we will respond with an inspection time (if available). You must be registered for the inspection to attend. If no inspection times are currently available, please submit your details and you will be advised instantly when a new time is available.
By registering, you will be instantly informed of any updates, changes.
Looking for investment advice? Speak to our Property Management team to see how we can assist.
RLA 313174
