Low Maintenance Townhouse Living!
Available: 11th November
Lease Term: 12 months
Embrace a sophisticated, contemporary lifestyle with quality fixtures and features throughout. This townhouse is also perfectly located amongst other quality homes so this one is sure to impress!
Features that make this home special:
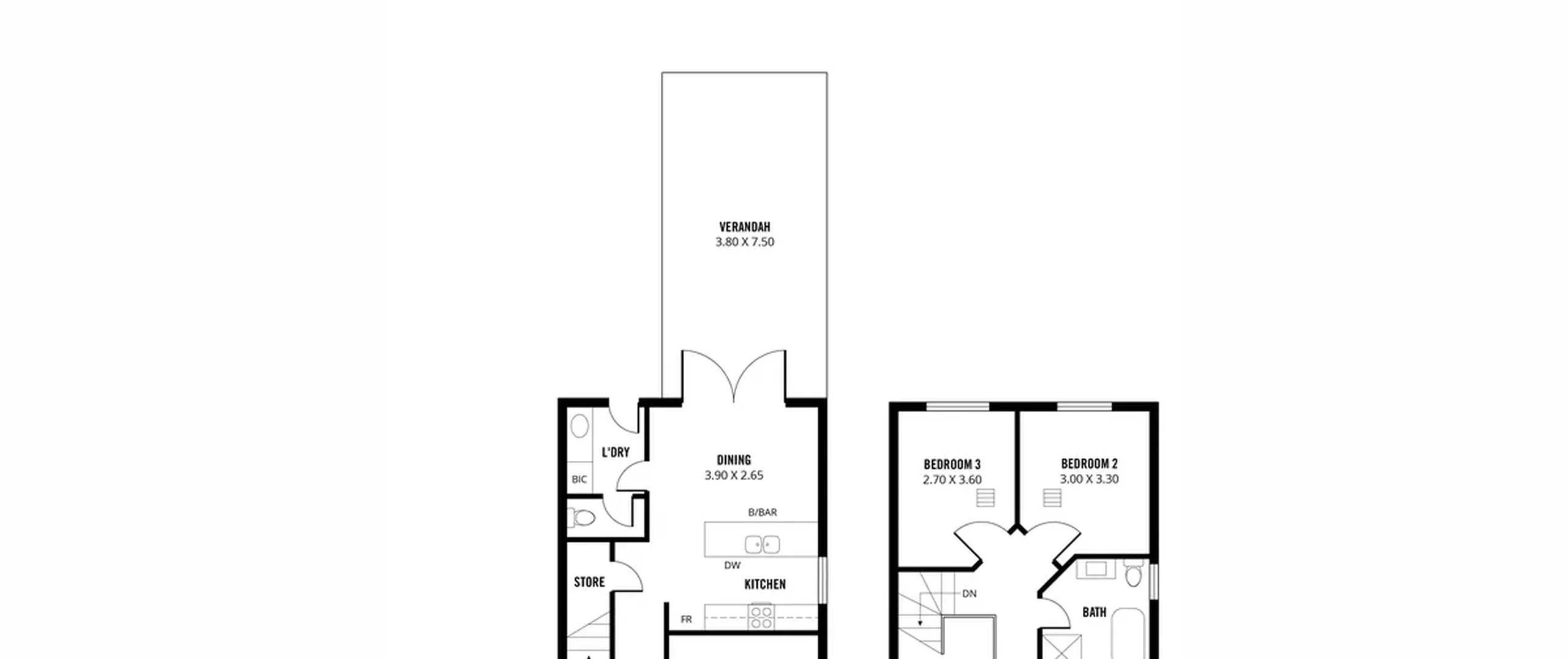
Upper level:
- Bright and large main bedroom complete with ceiling fan, carpet, walk-in robe and access to private balcony
- Well sized bedrooms 2 and 3 with double sliding door built-in wardrobe
- Modern main bathroom with floor-to-ceiling tiles, freestanding bath, semi frameless shower, toilet, large floating vanity with additional storage below and plantation shutters
Lower level:
- Light filled formal lounge upon entry with fire place
- Sleek on-trend kitchen with updated stainless steel appliances including dishwasher, dual sink, oven and gas cooktop, PuraTap, feature tiled splash back, ample cupboard and bench space complete with breakfast bar
- Open plan kitchen, living and dining room with timber French doors opening to undercover entertainment area with ceiling fans
- Stylish separate laundry with linen storage cupboard, sink and external access
- Valuable second toilet attached to laundry
- Under stair storage
- Timber flooring throughout
- Split system air conditioner
- Secure, paved low maintenance courtyard
- Double garage, extended to include extra storage and workbench, automatic roller door and roller door access to courtyard
Situated in close proximity to Northgate Shopping Centre and Gilles Plains Shopping Centre. Located nearby to a variety of schools including Cedar College. Close to stunning parks and local cafes' including Lakeside Cafe. Convenient public transport options are also within easy reach. All this and only 10kms (approximately) to the Adelaide CBD.
Water Charges: Tenants to pay all water supply charge & all water usage
Please Note: This property is part of a Strata/Community plan, additional approval for pets may be required. This process involves seeking consent from the corporation, which may include a notice period. Approval is not guaranteed and is subject to the rules and regulations of the Strata/Community plan.
All information contained herewith, including but not limited to the general property description, price and the address, is provided to Boffo Real Estate by third parties. We have obtained this information from sources we believe to be reliable; however, we have not verified and do not guarantee its accuracy. The information contained should not be relied upon and you should make your own enquiries and seek advice in respect of this property or any property on this website.
TO VIEW THIS PROPERTY: please enquire via the ‘Book an Inspection’ or ‘Request an Inspection’ button and we will respond with an inspection time (if available). You must be registered for the inspection to attend. If no inspection times are currently available, please submit your details and you will be advised instantly when a new time is available.
By registering, you will be instantly informed of any updates, changes.
Looking for investment advice? Speak to our Property Management team to see how we can assist.
RLA 313174
