Modern Townhouse Living
IMPORTANT NOTE: Only limited spots are available to view the property at inspection. Submitted applications will be given priority to view. Please complete an application online through the ‘Apply for this property’ button on the property listing on our website (boffo.com.au) with all relevant documentation included.
Available: 16th June
Lease Term: 12 months
Pets: Not Permitted
Delightfully located within easy reach of all desirable amenities. Grenache Reserve and playground are a short walk away along with Edinburgh Reserve and Civic Park. Ready for you to move in and enjoy!
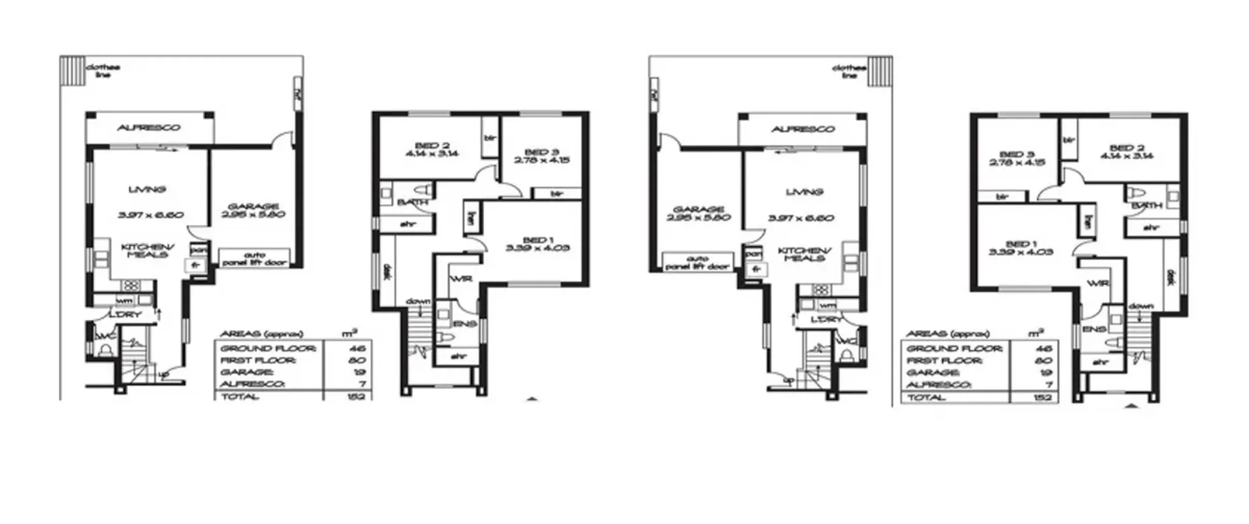
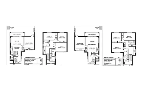
Features of the home include:
- 3 good sized bedrooms, master with walk in robe and ensuite
- Bedrooms 2 & 3 both with built in robes
- Open plan kitchen and living area with seamless access to the courtyard
- Modern kitchen with gas cooking and dishwasher
- Stylish main bathroom with floor to ceiling tiles
- Upstairs study area with adjacent storage
- Additional ground floor powder room
- Ducted heating and cooling throughout
- Separate laundry
- Single garage with automatic roller door and direct access to the home
Perfectly positioned close by to Tea Tree Plaza, North East Modbury Medical & Dental Centre, Modbury Hospital, Civic Park, City of Tea Tree Gully Library and public transport options including the City via The O-Bahn Interchange. Excellent public and private schools are only a short distance away. All this and only 15km (approximately) from the Adelaide CBD.
Water Charges: Tenants to pay all water supply charge & all water usage
The Landlord cannot guarantee that the property has an active phone line or ADSL/NBN connections or in an internet availability area.
TO VIEW THIS PROPERTY: please enquire via the ‘Book an Inspection’ or ‘Request an Inspection’ button and we will respond with an inspection time (if available). You must be registered for the inspection to attend. If no inspection times are currently available, please submit your details and you will be advised instantly when a new time is available.
By registering, you will be instantly informed of any updates, changes.
RLA 313174
