A Modern Lifestyle Awaits!
Available: Now
Lease Term: 12 months
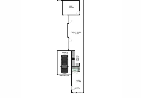
This stylish low maintenance 2 bedroom townhouse offers comfortable and contemporary living. Featuring an open-plan layout filled with natural light.
Features that make this home special:
- 2 Bedrooms
- Upon entering the home you are greeted by a light-filled living area
- Fantastic open plan family and dining area boasting plenty of natural light
- Contemporary bright kitchen with stainless steel appliances including oven, gas cooktop, dishwasher and ample cupboard space
- Split system heating and cooling
- Modern bathroom with shower, toilet and vanity
- Separate laundry
- Low maintenance rear yard
- Solar panels
- Windows double glazed
- Spacious single garage with roller door
The suburb of Lightsview has been carefully designed with attention to convenience and open spaces, incorporating pedestrian linkages, 15 hectares of local parks and public reserves, public transport and cycling routes. Located close to Northgate Shopping Centre and a variety of excellent public and private schools. All this and only 7km (approximately) to all the cafes and shopping North Adelaide has to offer and the vibrant Adelaide Oval River precinct and less than 9km (approximately) to the CBD.
Water Charges: Tenants to pay all water supply charge & all water usage
All information contained herewith, including but not limited to the general property description, price and the address, is provided to Boffo Real Estate by third parties. We have obtained this information from sources we believe to be reliable; however, we have not verified and do not guarantee its accuracy. The information contained should not be relied upon and you should make your own enquiries and seek advice in respect of this property or any property on this website.
TO VIEW THIS PROPERTY: please enquire via the ‘Book an Inspection’ or ‘Request an Inspection’ button and we will respond with an inspection time (if available). You must be registered for the inspection to attend. If no inspection times are currently available, please submit your details and you will be advised instantly when a new time is available.
By registering, you will be instantly informed of any updates, changes.
Looking for investment advice? Speak to our Property Management team to see how we can assist.
RLA 313174
