Easy-Care Townhouse Offering an Exceptional Lifestyle!
Available: NOW
Lease Term: 12 months
If you are looking for a stylish, low maintenance home, then this is the property for you!
Features that make this home special:
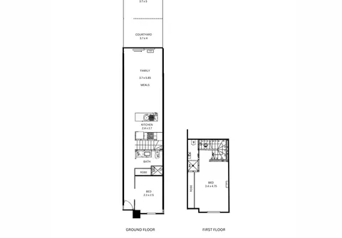
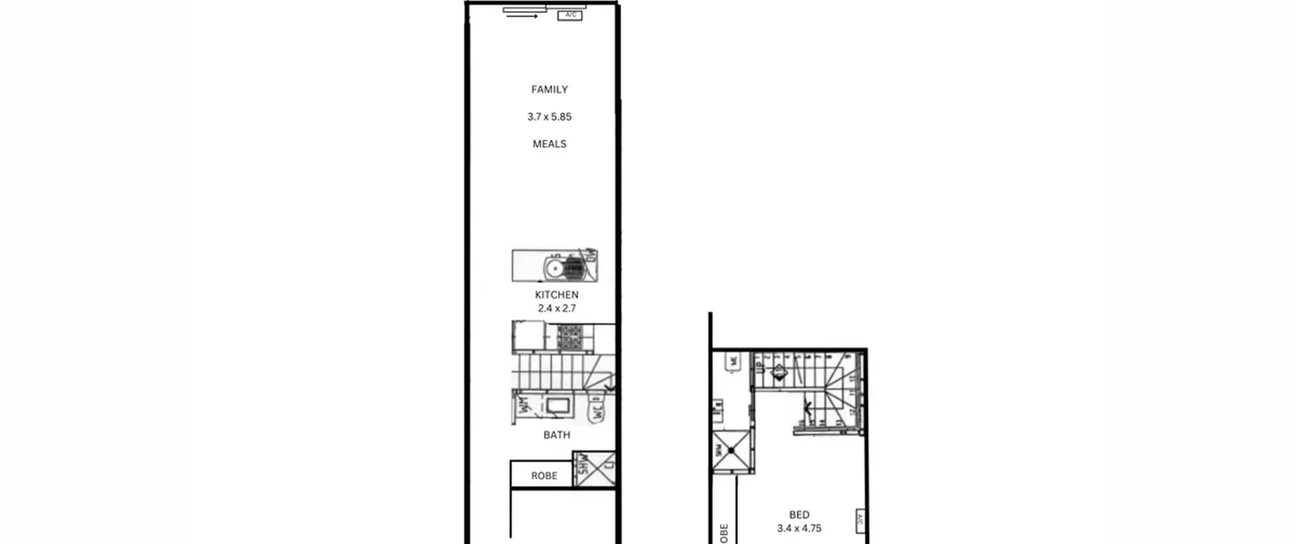
- Modern kitchen with, gas cooktop, dishwasher, and ample storage space
- Bright and spacious family/dining room with external sliding doors to courtyard
- Master bedroom upstairs complete with ensuite, built-in robe and reverse cycle split system air conditioner.
- Second bedroom on ground floor, with built in robe.
- Tiled main bathroom with shower, large vanity.
- Laundry in main bathroom with bench space and storage cupboard.
- Private courtyard
- Single Carport with laneway access
The suburb of Lightsview has been carefully designed with attention to convenience and open spaces, incorporating pedestrian linkages, 15 hectares of local parks and public reserves, public transport and cycling routes. Located close to Northgate Shopping Centre, and the new Lightsview Village Shopping Centre and a variety of excellent public and private schools. All this and only 7km (approximately) to all the cafes and shopping Prospect and North Adelaide has to offer and the vibrant Adelaide Oval River precinct and less than 9km (approximately) to the CBD.
Water Charges: Tenants to pay all water supply charge & all water usage
Please Note: This property is part of a Strata/Community plan, additional approval for pets may be required. This process involves seeking consent from the corporation, which may include a notice period. Approval is not guaranteed and is subject to the rules and regulations of the Strata/Community plan.
All information contained herewith, including but not limited to the general property description, price and the address, is provided to Boffo Real Estate by third parties. We have obtained this information from sources we believe to be reliable; however, we have not verified and do not guarantee its accuracy. The information contained should not be relied upon and you should make your own enquiries and seek advice in respect of this property or any property on this website.
TO VIEW THIS PROPERTY: please enquire via the ‘Book an Inspection’ or ‘Request an Inspection’ button and we will respond with an inspection time (if available). You must be registered for the inspection to attend. If no inspection times are currently available, please submit your details and you will be advised instantly when a new time is available.
By registering, you will be instantly informed of any updates, changes.
RLA 313174
