Location Perfect
IMPORTANT NOTE: To ensure the safety of our staff, clients and the general public we will be conducting property viewings by appointment only.
1. Please complete an application online through the ‘Apply for this property’ button on the property listing on our website (boffo.com.au) with all relevant documentation included.
2. Your application will be processed and qualified applicants as per the landlords instruction will be invited to a private inspection (the invitation to inspect does not constitute approval granted to lease the property).
We thank you for your understanding and co-operation during this time.
Available: 20th April
Lease Term: 12 months
Pets: Negotiable
This fantastic low maintenance home provides a great opportunity for those seeking a secure and private property without compromising on comfort and location. Boasting a huge list of features and with its great city fringe location, this is a home that will truly appeal to those already living in the area and looking to downsize.
Features that make this home special:
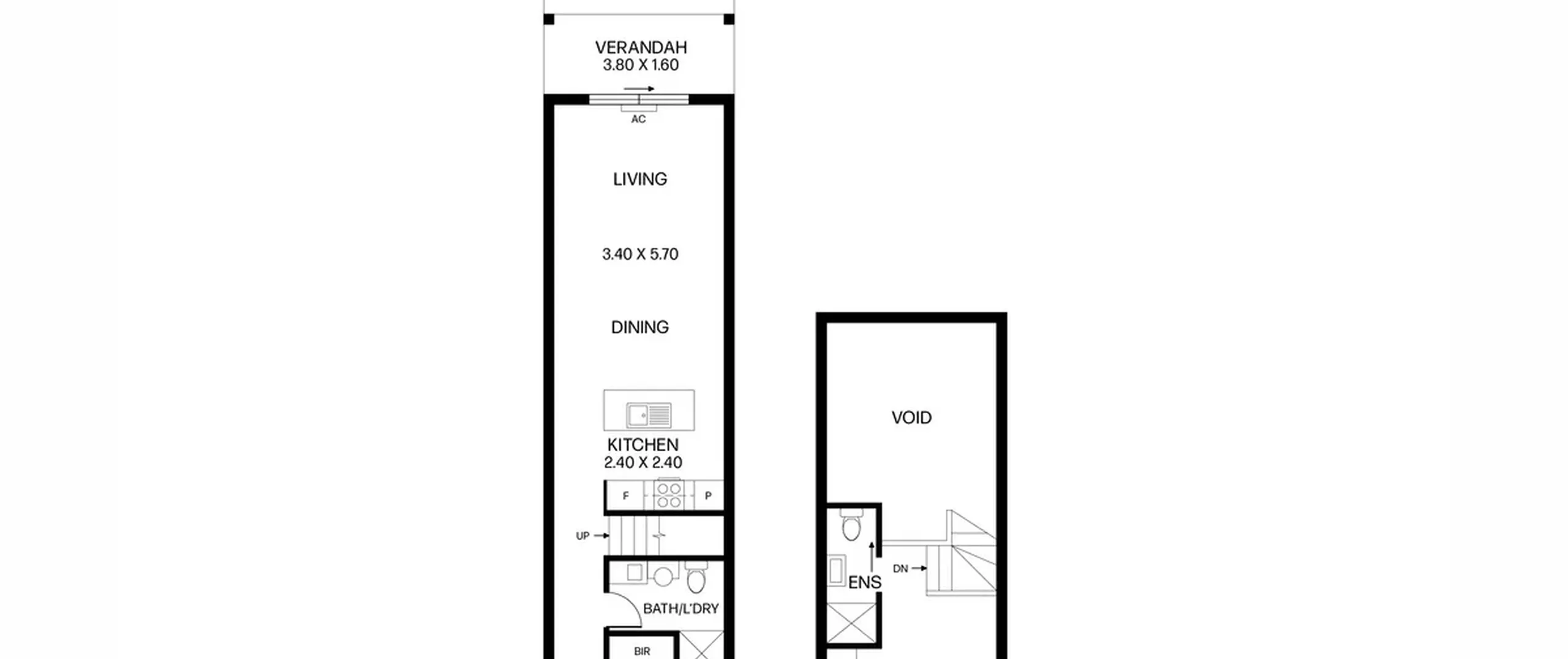
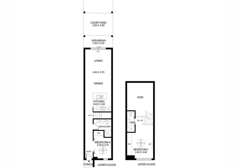
- Upstairs bedroom 1 retreat with built-in robe and ensuite
- Good sized bedroom 2 with built-in robe
- Light filled open plan family and meals area
- Modern kitchen with ample cupboard and bench space
- Contemporary main bathroom with separate shower
- European laundry in main bathroom
- Verandah entertaining area
- Fully fenced low maintenance courtyard
- Single carport with automatic panel lift door via rear access
The suburb of Lightsview has been carefully designed with attention to convenience and open spaces, incorporating pedestrian linkages, 15 hectares of local parks and public reserves, public transport and cycling routes. Located close to Northgate Shopping Centre and with plans for a future town centre in Lightsview featuring cafes and specialty stores. A variety of excellent public and private schools in close proximity. All this and only 10km (approximately) to all the cafes and shopping North Adelaide has to offer, the vibrant Adelaide Oval River precinct and less than 10km (approximately) to the CBD.
Water Charges: Tenants to pay all water supply charge & all water usage
The Landlord cannot guarantee that the property has an active phone line or ADSL/NBN connections or in an internet availability area.
RLA 200591
