Sophisticated, Elegant and Impressive!
IMPORTANT NOTE: Only limited spots are available to view the property at inspection. Submitted applications will be given priority to view. Please complete an application online through the ‘Apply for this property’ button on the property listing on our website (boffo.com.au) with all relevant documentation included.
PLEASE NOTE: Face masks are required to be worn to view this property and individuals from one group limited to 2 people only.
Available: 14th February
Lease Term: 12 months
Pets: Negotiable
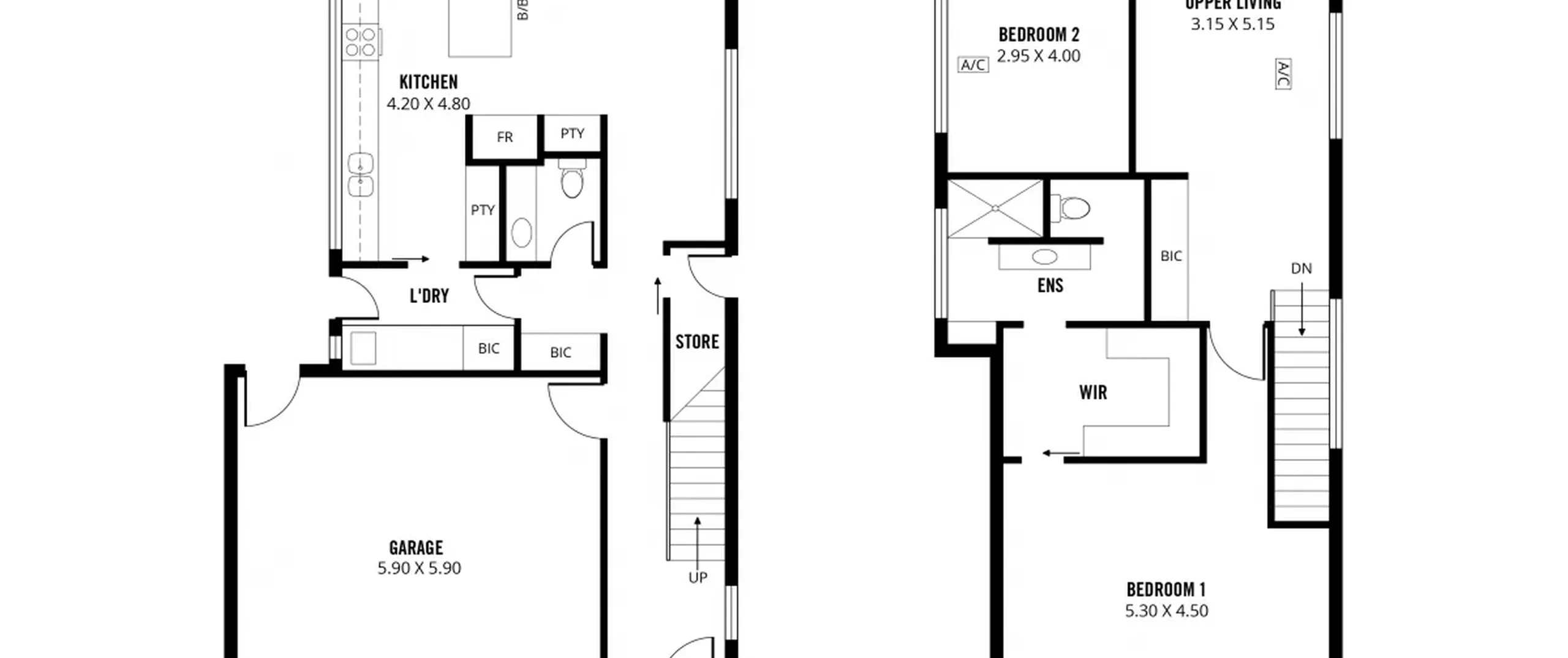
Private and securely located, set back from the road! With its stylish modern exterior and fresh contemporary interior, it is a home that will appeal to busy families seeking generous living space in a great location.
Lower level comprising of:
- Luxurious and light filled open plan living/dining and kitchen area
- Stunning modern kitchen with stainless steel appliances, gas cooktop, 900mm oven, dishwasher, stone bench tops, breakfast bar, island bench and ample bench and cupboard space
- Spacious dining area adjacent kitchen
- Powder room for your convenience
- Separate laundry + cupboards
- Storage room under stairs
- Impressive alfresco under the main roof
- Low maintenance gardens with irrigation
- Double garage with direct internal and external entry and automatic panel lift door
- Samsung ducted reverse-cycle air-conditioning with separate zones
Upper level comprising of:
- Enormous master bedroom with ensuite, huge walk-in robe and dressing room area
- Good sized bedrooms 2 and 3, both with built-in robes
- Glistening main bathroom with floor to ceiling tiles, free standing bath, semi frameless shower and separate toilet
- Convenient spacious second living room with built-in cupboard
In close proximity to a great variety of early learning centres, public and private schools including Highbury Primary School and Torrens Valley Christian School. Various sporting grounds and parks are all nearby. You are spoilt for choice with many shopping options close by including the Hope Valley Shopping Centre and Tea Tree Plaza. All of this and easy access to the CBD via the O-Bahn Interchange.
Water Charges: Tenants to pay all water supply charge & all water usage
The Landlord cannot guarantee that the property has an active phone line or ADSL/NBN connections or in an internet availability area.
TO VIEW THIS PROPERTY: please enquire via the ‘Book an Inspection’ or ‘Request an Inspection’ button and we will respond with an inspection time (if available). You must be registered for the inspection to attend. If no inspection times are currently available, please submit your details and you will be advised instantly when a new time is available.
By registering, you will be instantly informed of any updates, changes.
RLA 200591
