Rural Lifestyle with City Convenience
This unique opportunity to secure a country residence set on approximately 15ha (37 acres) of undulating open space offers a rural lifestyle perfectly married with city convenience. This substantial land holding in Yatala Vale with its well established manicured lawns is situated at the end of a no-through road offering such peace and tranquility you may not realize you are only 20km (approximately) from the Adelaide CBD.
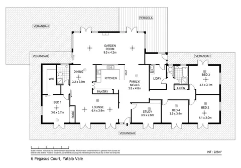
This ranch style residence with its wide verandahs and classic overhanging eaves offers substantial accommodation for the growing family, comprising of 4 to 5 generous bedrooms, all with French doors to the verandah allowing for the free flow of fresh air. 3 of the bedrooms are serviced by the main bathroom and the master suite comprises ensuite and large walk-in robe. The 5th bedroom may also be utilized as a home office. The Baltic timber kitchen is conveniently located in the central part of the house servicing both formal and informal dining areas and providing a picturesque overview out to the manicured gardens.
The property is serviced by mains water and power supplemented by a generous 4.6kw solar system providing substantial savings on those ever increasing power bills. Additional benefits include ducted evaporative cooling, ceiling fans, monitored security system, 25,000 litre rainwater tank and fully reticulated irrigation.
Further facilities include:
- Tack area under main roof of residence
- 8 individual paddocks, some with electric fencing providing security for the horses
- 12m x 6m implement shed with 8m x 6m annex
- 20m x 6m compound incorporating 4 stables, wash bay, feed bay and enclosed yards
- 2 x Hay sheds
- Bore capable of 3,000 litres per hour
- 40m x 60m dressage arena (The property has been used to train horses and riders for eventing at local and national competitions)
- Income potential – There is room for adjusting 18 horses with a potential gross income ranging from $40,000 - $65,000 per annum depending on the level of service you may wish to provide
- Another option would be to set up the home as a lucrative B&B with proximity to regional tourist attractions
To truly appreciate this lifestyle on offer, inspection is an absolute must. It’s time to live the dream!
For further information please contact James Rawkins on 0408 081 826 or Gordon Little on 0418 824 036
RLA 200591
The Vendor's Statement (Form 1), the Auction Contract and the Conditions of Sale will be available for perusal by members of the public -
(A) at our office located at 434 Montague Road, Modbury North for at least 3 consecutive business days immediately preceding the auction; and
(B) at the place at which the auction is to be conducted for at least 30 minutes immediately before the auction commences.
