Add Up The Plus's
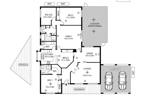
This delightful 3 bedroom family home has been lovingly cared for and fastidiously maintained by the original owners. Offering multiple internal living options and a fabulous outdoor entertaining area, this home has plenty of room for the whole family.
Features that make this home special:
- Master bedroom with walk-in robe, built-in robe and ensuite
- Spacious bedrooms 2 and 3, bedroom 2 with built-in robe
- Light filled lounge with ceiling fan
- Formal dining room with wall heater and split system air conditioner
- Timber kitchen with gas cooktop and ample cupboard space
- Meals area adjacent kitchen with pantry
- Large family room
- Neat and tidy main bathroom with separate bath and shower + separate toilet
- Separate laundry with linen cupboard
- Ducted evaporative cooling throughout
- Expansive undercover outdoor entertaining area with ceiling fan and café blinds
- 3 x rainwater tanks plumbed to kitchen and laundry
- Paved pergola area
- Manicured front and rear gardens with automatic irrigation
- Garden shed
- Double carport with automatic front roller doors and drive through rear access with roller doors
Ideally located close to a variety of schools, local shops and public transport options. All of this and only a short drive to all of the shopping and entertainment offered at Golden Grove Village and Tea Tree Plaza.
For further information please contact Gordon Little on 0418 824 036 or 8269 7711 (office).
RLA 265613
