Sophisticated Two Storey Elegance!
This beautifully presented open plan courtyard home boasts natural light filled living areas, modern kitchen, downlights throughout and an expansive outdoor entertaining area. This is a home that offers a lock up and leave lifestyle, equally it represents a great opportunity for first home buyers and astute investors.
Features that make this home special:
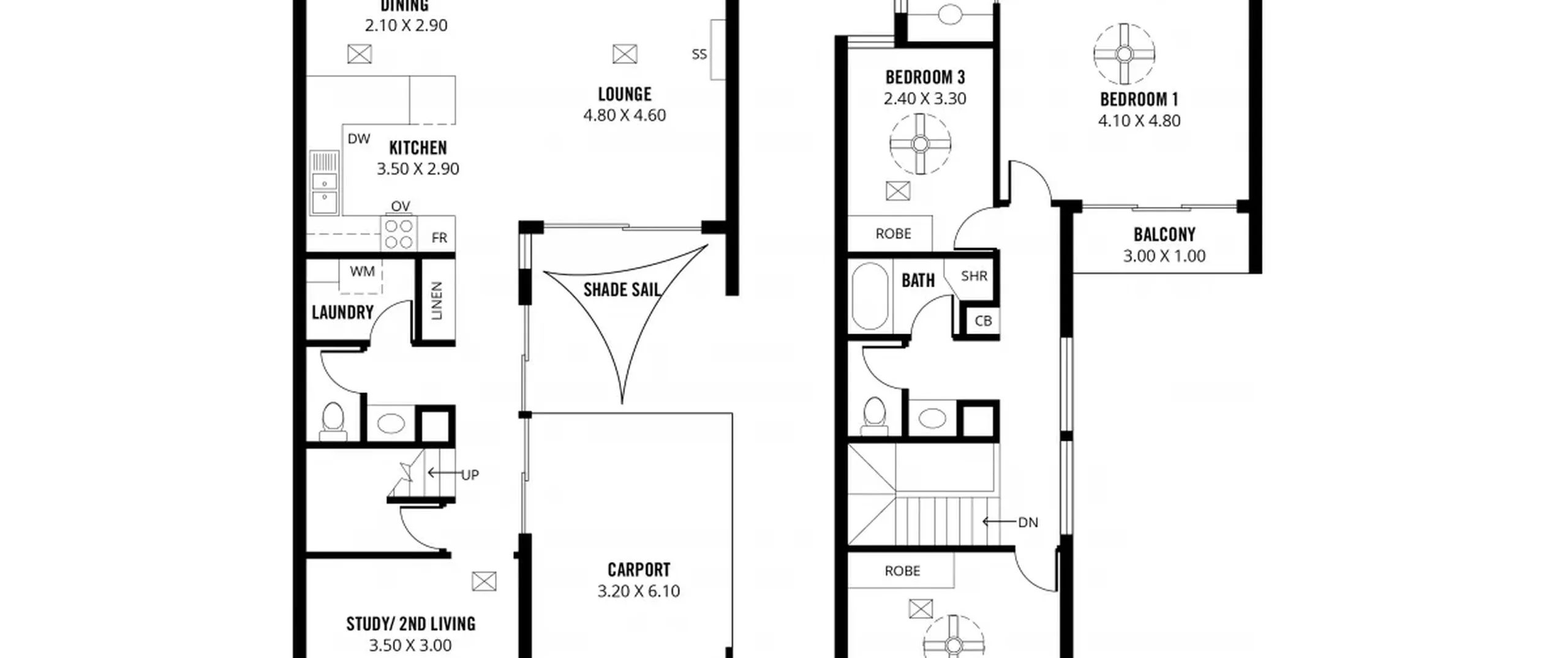
- Double sized master bedroom with built-in robe, ceiling fan, ensuite and balcony
- Good sized bedrooms 2 and 3, both with built-in robes and ceiling fans
- Study or second living area
- Stunning light filled open plan living/dining area with split system air conditioner
- Stylish kitchen with stone bench tops, gas cooktop, dishwasher provision, breakfast bar and ample bench and cupboard space
- Main bathroom with separate bath and shower + separate toilet
- Powder room with basin on lower level for your convenience
- Separate laundry
- Ducted reverse cycle air conditioning throughout
- Expansive paved verandah with garden shed
- Single carport with automatic panel lift door
It's all here, offering a low maintenance lifestyle.
Ideally located within the ever demanding suburb of Windsor Gardens, with local parks, schools and Gilles Plains Shopping Centre all within walking distance. Furthermore, a comfortable 2 minute walk will take you right down to the exclusive Linear Park. All of this and only a short drive to all the shopping and entertainment that Tea Tree Plaza has to offer.
For further information please contact Anthony Wenzel on 0428 909 228 or 8269 7711 (office).
RLA 200591
