Family Home in City Fringe Location, Waiting For Its New Owner!
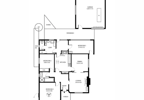
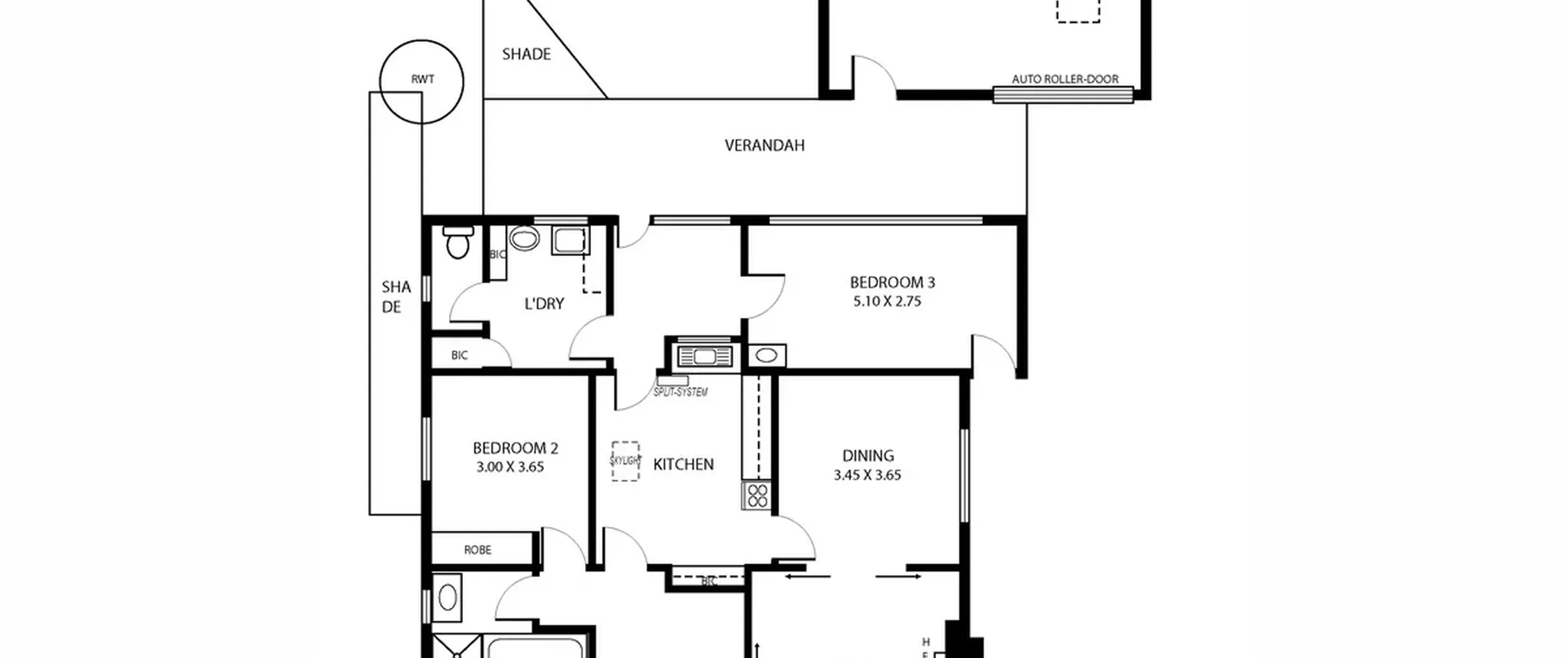
This exceptional dwelling set on a large 698sqm (approximate) block provides ample space for the entire family to live and play, comprising a beautiful manicured garden and stunning sought after character features that include high ceilings with ornate plasterwork, fireplace, floorboards and leadlight glass. Whilst also delivering all of the benefits of a city fringe location, this is an opportunity that you will not want to miss.
Features that make this home special:
- 3 large bedrooms, bedroom 1 with ceiling fan, bedroom 2 with built-in robe, bedroom 3 with valuable side access and own vanity
- Formal lounge room with split system air conditioner, fireplace and ceiling fan
- Large formal dining room
- Eat in kitchen with split system air conditioner, skylight and ample bench and cupboard space
- Main bathroom with separate bath and shower
- Separate spacious laundry + separate toilet
- High ceilings, natural light filled rooms throughout
- Stained timber floors to living areas
- Freshly painted
- Security screen in sash window
- Solar hot water service
- Rear Verandah, ideal for outdoor entertaining
- Large secure rear yard with ample room to add a pool if you wish
- Variety of fruit trees including tangelo, banana, custard apple, mango, lemon
- 2x Rainwater tank
- Double drive through garage with pit and automatic roller door
- Separate workshop area at rear of garage
Perfectly located close by to the fantastic Churchill Road shopping precinct including Costco and Aldi, as well as Northpark Shopping Centre and Sefton Plaza. Just a short distance to a variety of quality schools such as St Margaret Mary's School, Prospect Primary School, Brompton Primary School and Tafe SA Regency Campus as well as child care and early learning centres. The Parks Recreation and Sports Centre and Regency Golf Course are also only a short drive away. All this and only 6.6kms (approximately) to the CBD!
For further information please contact Warwick Haseloff on 0499 111 996 or 8269 7711 (office).
RLA 200591
The Vendor's Statement (Form 1), the Auction Contract and the Conditions of Sale will be available for perusal by members of the public -
(A) at our office located at 87 North East Road, Collinswood for at least 3 consecutive business days immediately preceding the auction; and
(B) at the place at which the auction is to be conducted for at least 30 minutes immediately before the auction commences.
