Prime Land for Sale in Walkley Heights - A Canvas for Your Ideal Lifestyle!
Embrace an extraordinary opportunity to claim ownership of a remarkable piece of Walkley Heights – a sprawling allotment spanning 521sqm (approx.) Positioned in a coveted dress circle location, this land offers an unparalleled canvas for crafting the home of your dreams or making a strategic investment in a flourishing community (subject to council consent).
Nestled at the heart of this vibrant suburb, an array of amenities converges to curate an idyllic lifestyle. In close proximity, the Ingle Farm Shopping Centre, scenic Dry Creek walking paths, and a swift connection to the Adelaide CBD create a tapestry of convenience at your fingertips.
Discover the perfect fusion of serenity and accessibility, with parks, public transport options, and esteemed schools such as Ingle Farm Primary, Valley View Secondary, St Pauls College, Heritage College, and Cedar College mere minutes away. As the day unfolds, indulge in retail therapy at Ingle Farm Shopping Centre, or explore the myriad shopping and entertainment choices at Tea Tree Plaza – all within a short drive.
Enjoy the luxury of being less than 13km (approx.) from the Adelaide CBD, ensuring you are seamlessly connected to the heartbeat of the city. Don't miss this chance to secure a prime piece of Walkley Heights, where your vision of an ideal lifestyle or a savvy investment can become a reality. Act now and make your mark on this dynamic and growing community!
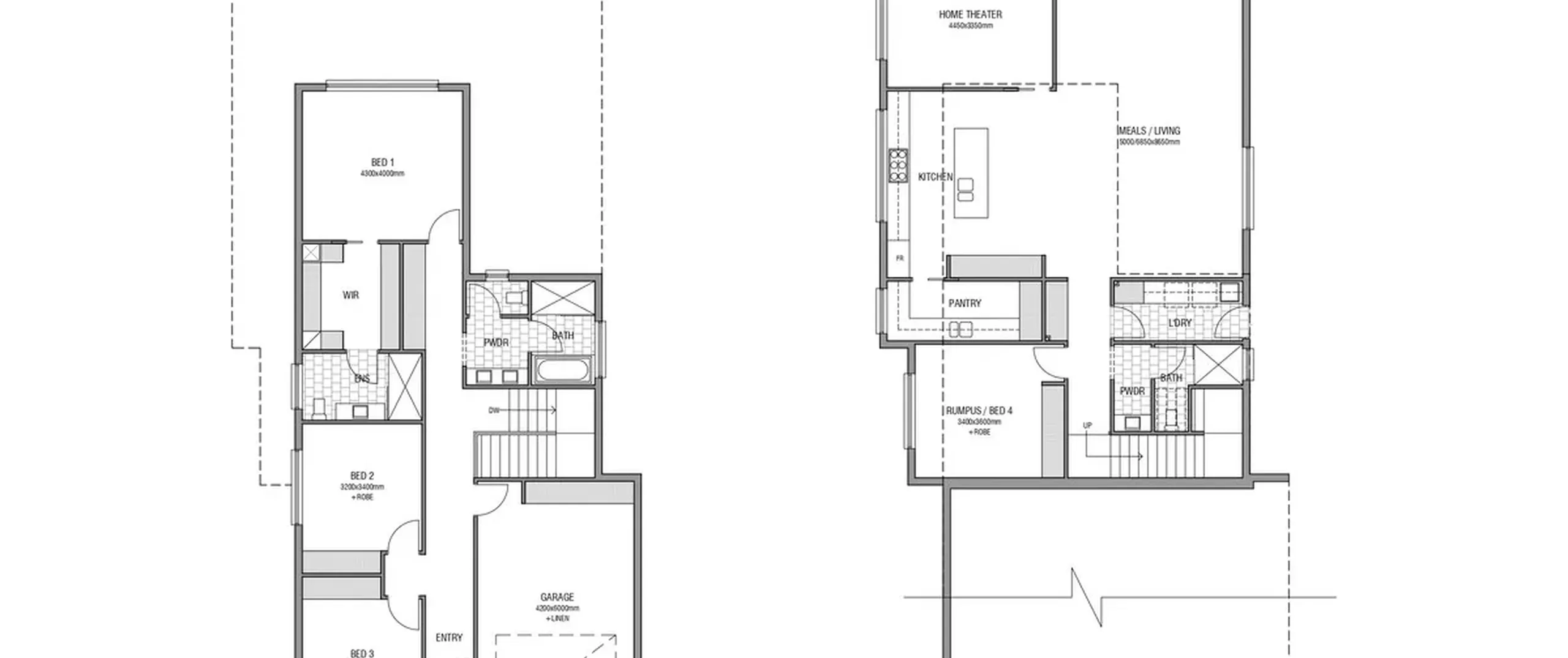
Building plans have been submitted and approved by Council. The plans are for a 4-bedroom, two living room double story house. Please contact Fadi directly for more information.
Please note: Buyers must make their own enquiries with council and the purpose of the sale is for the land only. Any concept plans provided in this advertisement are not to be relied upon and all potential development opportunities are subject to all the relevant planning consents.
All information contained herewith, including but not limited to the general property description, price and the address, is provided to Boffo Real Estate by third parties. We have obtained this information from sources we believe to be reliable; however, we have not verified and do not guarantee its accuracy. The information contained should not be relied upon and you should make your own enquiries and seek advice in respect of this property or any property on this website.
RLA 313174
