Exceptional Family Home with Premium Park Views!
This grand family residence is a rare and exceptional opportunity, set on approximately 633sqm of valuable corner-positioned land directly across from the scenic Walkley Heights Reserve. Equipped with high-end features, this property stands out from the competition, promising a lifestyle that feels like a dream.
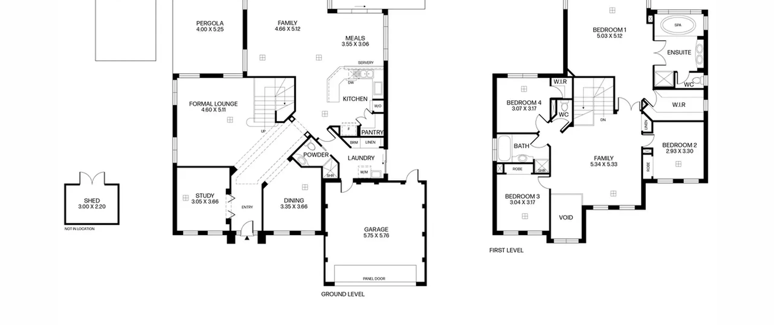
With its commanding street presence, immaculate façade, low-maintenance landscaped gardens, and elevated position, the home makes a striking first impression. The open-plan family, meals, and kitchen area is perfect for everyday living, while sliding glass doors lead to an expansive outdoor entertaining space complete with a large pergola, outdoor kitchen, and sparkling in-ground swimming pool, an entertainer’s dream.
Designed for versatile family living, the layout also includes a formal lounge, study, and formal dining room on the lower level, with an additional family room upstairs offering a relaxed, private retreat. There are four spacious bedrooms, including a luxurious master suite and a total of three bathrooms, perfect to comfortably accommodate the needs of growing families.
Lovingly cared for and move-in ready, the home is filled with quality inclusions and thoughtful touches that promise a truly enjoyable living experience.
Features that make this home special:
Upper level:
- Expansive and light-drenched master suite with spacious walk-in robe and private ensuite with two basins, a spa bath, a separate toilet and a separate shower
- Bedrooms two and three complete with built in robes
- Bedroom four with a walk in robe
- Second family area ideal for relaxation
- Main bathroom with large bath, separate shower and separate toilet for added convenience
Lower Level:
- Generous formal lounge, inviting guests to relax and enjoy intimate conversations in a stylish setting
- Separate dedicated dining room, ideal for sit-down family dinners and special occasions
- Spacious study to the front of the home with a peaceful outlook of the reserve across the road
- Open-plan family and meals space with on-trend neutral timber-look flooring and sliding door access to the rear yard
- A well-appointed kitchen with Tasmanian Oak cabinetry, stainless steel appliances including a gas cooktop, dishwasher and oven with warming drawer, ample storage and bench space and a breakfast bar
- Convenient and modern downstairs bathroom with shower and toilet
- Separate laundry with linen cupboard, broom cupboard and direct external access
- An impressive outdoor entertaining area with large L-shaped pitched roof pergola, outdoor kitchen with barbeque, ceiling fan and powered water feature pond, the perfect space for entertaining
- Stunning in-ground swimming pool surrounded by low maintenance gardens with artificial lawn
- Raised sitting area overlooking the pool
Additional Highlights:
- Double garage with panel lift door, internal and external access
- Ducted air-conditioning throughout
- In-built vacuum system
- LED downlights
- Solar panels
- Low-maintenance gardens
Ideally located in the highly sought after suburb of Walkley Heights, and within convenient walking distance to the beautiful Dry Creek and walking trails. Minutes away from parks, public transport options and a variety of schools including Ingle Farm Primary, Valley View Secondary, St Pauls College, Heritage College and Cedar College. Only a short drive to Ingle Farm Shopping Centre and all the shopping and entertainment that the Tea Tree Plaza has to offer. All this and 14km (approximately) to the Adelaide CBD.
All information contained herewith, including but not limited to the general property description, price and the address, is provided to Boffo Real Estate by third parties. We have obtained this information from sources we believe to be reliable; however, we have not verified and do not guarantee its accuracy. The information contained should not be relied upon and you should make your own enquiries and seek advice in respect of this property or any property on this website.
The Vendor's Statement (Form 1), the Auction Contract and the Conditions of Sale will be available for perusal by members of the public - (A) at our office located at 78-80 North East Road, Walkerville for at least 3 consecutive business days immediately preceding the auction; and (B) at the place at which the auction is to be conducted for at least 30 minutes immediately before the auction commences.
Looking to purchase this property as an investment? Speak to our Property Management team to see how we can assist.
RLA 313174
