Fantastic Family Home
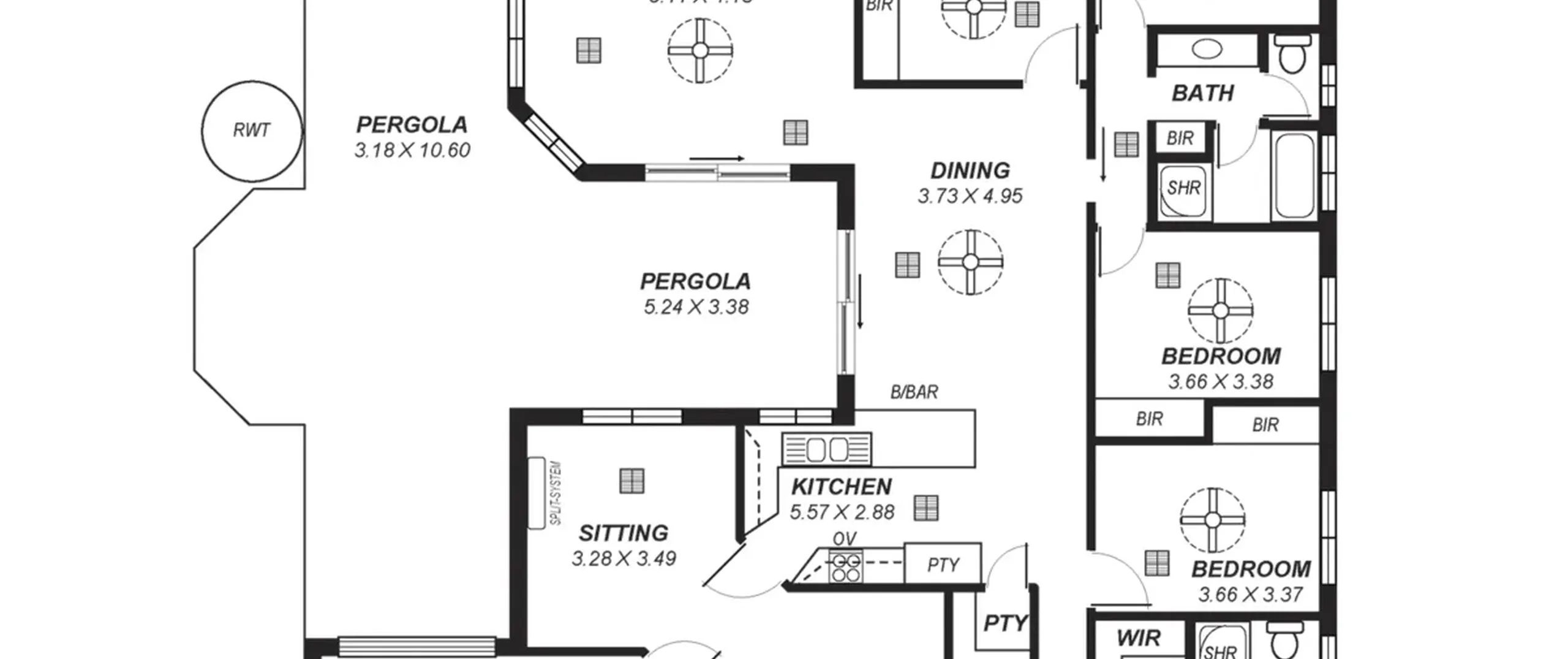
This modern 4 bedroom family home set on a low maintenance 597sqm (approximate) allotment provides an outstanding lifestyle opportunity. Offering outstanding year round entertaining options with perfect natural flow from the internal living areas to the external undercover area, this home will truly spoil the whole family.
Features that make this home special:
- Master bedroom with walk-in robe, ensuite and ceiling fan
- Spacious bedrooms 2, 3 and 4, all with built-in robes and ceiling fans
- Large family room with ceiling fan
- Sitting room with split system air conditioner
- Modern kitchen with stainless steel appliances, walk-in pantry and ample bench and cupboard space
- Light filled open plan living and dining area with ceiling fans
- Neat and tidy main bathroom with separate bath and shower + separate toilet
- Separate laundry with built-in cupboard and bench
- Actron ducted reverse cycle air conditioning throughout
- Expansive pergola ideal for outdoor entertaining
- 2 x rainwater tanks
- Fully fenced and secure low maintenance front and rear yard
- Garden shed
- Double garage with automatic roller door, direct internal access and rear access roller door
Located in the highly sought after suburb of Walkley Heights, this home is within convenient walking distance to the beautiful dry creek and walking trails and only minutes away from public transport options, local parks and a variety of schools. Ingle Farm Shopping Centre and Tea Tree Plaza are only a short drive away.
For further information please contact Shane Staker on 0455 999 007 or 8269 7711 (office).
RLA 265613
The Vendor's Statement (Form 1), the Auction Contract and the Conditions of Sale will be available for perusal by members of the public -
(A) at the office of the agent for at least 3 consecutive business days immediately preceding the auction; and
(B) at the place at which the auction is to be conducted for at least 30 minutes immediately before the auction commences.
