Please contact agent direct to schedule a private viewing
IMPORTANT NOTE: As COVID-19 diagnoses increase around the world and to ensure the safety of our staff, clients and the general public we will be conducting property viewings by appointment only.
Please contact the agent direct to schedule a time.
We thank you for your understanding and co-operation during this time.
Opportunities like this don't come around often! This is your chance to secure 716sqm (approximately) of land with a wide 30.5m (approximate) frontage in the elite suburb of Walkerville.
Positioned in one of Adelaide's premier locations and ideally situated directly across from the Walkerville Oval and playground. Take advantage of this location only footsteps away from the Walkerville Shopping Complex and cafes, sporting grounds, and some of Adelaide's finest schools including St Andrew's School, Wilderness School and St Peter's College and zoned for Walkerville Primary School.
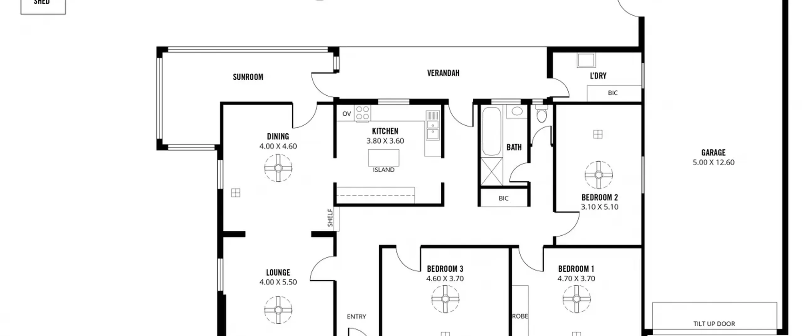
Currently disposed as a 3 bedroom, 1 bathroom home, it offers the new owner a multitude of options including: renovate and add your own personal touches, rent out and reap the rewards or redevelop (subject to council consent).
Astute buyers will surely be impressed with this rare opportunity to secure such a prime piece of land in a superb location.
Features that make this home special:
- Three large bedrooms all with ceiling fans, bedroom 1 with built-in robes
- Large lounge with ceiling fan
- Kitchen with island bench
- Dining room with ceiling fan
- Bathroom with separate bath and shower + separate toilet
- Large laundry with ample storage space
- Verandah and sunroom
- Enclosed gazebo
- Fully fenced rear yard with multiple sheds, storage room, rainwater tank and aviary
- Large garage with enough space for 3 vehicles
Only a few minutes' walk to the beautiful Linear Park. Relish the convenience of being less than 3kms (approximately) to North Adelaide and the Adelaide Oval Riverbank precinct and just 4kms (approximately) to the CBD.
For further information please contact Fadi Oudih on 0455 999 007, Paul Leombruno on 0439 160 161 or 8269 7711 (office).
RLA 200591
